バイク・自転車を雨風から保護
お家の収納能力をアップ
ガレージの保全・防犯にカーポートと合わせて
お庭に機能的スペースを作り出します
防犯、お家のドレスアップはこれで決まり
ガレージ商品とコンビで高級感を演出
各取扱メーカーの会社名、ロゴ及び商品名等は各社の商標または登録商標です。
| 日 | 月 | 火 | 水 | 木 | 金 | 土 |
|---|---|---|---|---|---|---|
| 1 | 2 | 3 | 4 | 5 | 6 | |
| 7 | 8 | 9 | 10 | 11 | 12 | 13 |
| 14 | 15 | 16 | 17 | 18 | 19 | 20 |
| 21 | 22 | 23 | 24 | 25 | 26 | 27 |
| 28 | 29 | 30 | 31 |
| 日 | 月 | 火 | 水 | 木 | 金 | 土 |
|---|---|---|---|---|---|---|
| 1 | 2 | 3 | ||||
| 4 | 5 | 6 | 7 | 8 | 9 | 10 |
| 11 | 12 | 13 | 14 | 15 | 16 | 17 |
| 18 | 19 | 20 | 21 | 22 | 23 | 24 |
| 25 | 26 | 27 | 28 | 29 | 30 | 31 |
…休業日(現場調査・工事は一部対応)
![]()
【受付時間】9:30 - 17:30(営業日)
![]()
【受付時間】9:30 - 17:30(営業日)
オペレーションスタッフ
エクステリアプランナー有資格者の私たちにお任せください。
ショップ責任者
神(じん)
エクステリア プランナー
有資格者61名
1/3
木附
枡田
重富
吉澤
吉野
小東
池本
山田
佐藤
白崎
新西
伊野
次田
浅川
南
西山
小林
梨田
長谷川
藤田
阿重田
村上
植松
内田
久田
小野
平戸
中島
長石
水口
榮
山崎
清水
室谷
安田
水谷
酒井
神吉
日下部
山中
深田
田中
水田
西田
一氏
岡本
北
坂本
中嶋
岩野
伊藤
上中
高山
竹本
犬井
佐伯
谷川
原
丸山
塚田
松本
上内
島田
森
梅田
松山
山本
小林
倉地
山根
中原
河野
村上
土井
岩破
南
井上
三ツ股
小田
依藤
永禮
林
加藤
石藤
駒井
末吉
山本
芦野
樽井
野上
岡田
木村
池田
西村
藤澤
達川
奥原
那須
小西
森下
1/3
今週のPick Upページ
![]()
ご利用頂いたお客様の口コミ・レビューを「お客様の声」として掲載しております。
全てのご感想を掲載しておりますので、エクスショップの評判としてご参考ください。
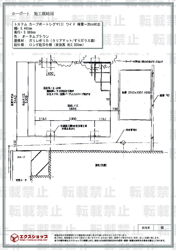
正式お見積りと一緒に提出させて頂いております「工事概略図面」もご覧頂けます。
商品や設置場所のご検討にお役立てください。
(写真No:18335418)
(カーポート)
| カラー | オータムブラウン |
|---|---|
| サイズ | 幅 5,443mm 奥行 5,686mm |
| 屋根高等 | ロング柱23仕様(有効高 約2,300mm) |
| 屋根材等 | ガリレポリカ(クリアマット/すりガラス調) |
| 工事方法 | メーカー責任施工 |
正直、施工の希望日が第一希望日でなかった点は不満点でしょうか。でも仕方無いですね、当方は東日本大震災の被災地ですから。さほど遅い日取りでなかったのは、色々と手を尽くしてくださったおかげだったからだと思います。有難うございました。施工の方も大変親切でした。
この度は、エクスショップをご利用頂きまして、誠に有り難うございます。東日本大震災により被災された皆様に、心よりお見舞い申し上げます。お客様にご満足して頂くことを第一に考えておりますので、このようなお言葉を頂き、大変嬉しく存じます。今後益々精進して参りますので、また機会がございましたら、ぜひエクスショップにご用命くださいますよう、宜しくお願い致します。
当サイトは以下のセキュリティ機能や保護認定等を備えています。安心してお申し込みください
当サイトは256ビットSSL暗号化に対応しています。入力した個人情報は暗号化して送られますので、安心してご利用ください。
当社はJADMAの正会員です。同協会は法律で位置づけられた団体で、消費者の利益保護と業界の健全な発展の為に活動しています。
こちらの工事に使用しているエクステリア
![]()
ネスカ R 2台用(ラウンドスタイル)

工事費・税込
223,500円〜
総合平均評価(星5つ評価)
4.76
商品レビュー数
1267件
ネスカ R 2台用(ラウンドスタイル)は大きなアール仕様の屋根が特徴的な横並び2台駐車可能のカーポートです。標準柱が2200mmとなっており大半の車種に対応可能。耐風性能は基準風速Vo=40m/s、耐積雪性能は20cm相当の耐性があります。
この商品の詳細へ
無料お見積り・現場調査・ご注文もこちら
この商品のレビュー
商品レビュー1,267件

東京都 江戸川区 K.A.様
とても満足していますが屋根が雨などの吹き込み防止など一工夫あると更に大満足になります。

東京都 あきる野市 T.S.様
標準仕様で高さが220cmあり十分。カラーも希望のものが選択でき、周囲との調和が図れた。

高知県 香美市 N.N.様
カーポートの下側、内面は問題有りませんが、外側の上側の方で、シーラントがされてるのにちょっと疑問持ちました。隣の一基目のカーポートはシーラントされていないので。

佐賀県 佐賀市 S.N.様
見た目もスッキリしていて柱も思ったほど太くなく設置後の駐車もスムーズです。

和歌山県 和歌山市 I.M.様
幅=3,624mm 奥行=5,686mm 色:シャイングレー 屋根材:ポリカーボネート(クリアブラウン) 柱仕様:標準柱仕様(有効高 約2,200mm)

千葉県 市原市 I.T.様
パネルの色や支柱の色合いなども良く満足しております。

埼玉県 さいたま市 S.M.様
商品は満足です、現地確認の担当者も丁寧に説明して頂きました、施工の方も初めにいろいろと説明して頂いてからの施工でしたが、施工完了時の商品が汚れたままだったのが残念です。

東京都 八王子市 A.S.様
思ったよりも高さがあったので、2.2mの高さで 良かったです。 欲を言えば、もう少し日光を遮断してくれれば良かったのですけど。

東京都 杉並区 I.T.様
前回施工して頂いた自転車置き場の時と同様に、非常に満足です。 ネスカは、柱が多少高いので仕上り全体の感じが良いように思います。

埼玉県 北本市 K.Y.様
車2台が余裕に入り、強風でも揺ら足りしないので、重宝しています。

埼玉県 川口市 O.K.様
暑くなってきたのもあり、カーポートがあると直射日光を遮れるし、梅雨の時期を前にして設置できて満足している。

兵庫県 宍粟市 F.M.様
高さもあり、フェンスともマッチしていて、良いと思います。

福岡県 北九州市 I.Y.様
家の雰囲気に合ってて、友人からも高評価です!

福岡県 宗像市 U.F.様
黒を基調とした外観で高級感もあり凄く満足しています。

岡山県 赤磐市 M.Y.様
ガゼボを建てるつもりでしたがカーポートにしました。 カーポートにしたら解放感もありとても良かったです。 現在はウッドデッキを工事中です。

広島県 広島市 M.A.様
写真のイメージよりどっしりとした感じがとても良かった。 施工を受けてくれた業者の方と色を相談して決めたが思った以上に満足した。
関連するお客様の声

5つ星のうち5
愛知県K.H. 様回答日:2013年10月
施工の事前調査から、実際の施工まで大変親切で丁寧でした。施工の希望日がこちらの希望日と合えば更に良かったと思います。

5つ星のうち5
佐賀県O.Y. 様回答日:2013年2月
インターネットで見積りのお願いをしましたが、メールで現場調査の日程の打合せなど、当方の希望日に合わせていただき、大変助かりました。また、施工業者の方も実際に車両を出し入れして、設置場所の位置を決めていただくなど、大変親切に配慮をしていただきありがというございました。

5つ星のうち5
熊本県Y.T. 様回答日:2013年11月
とても満足しています。工事の日取りも、思っていたより早めにしてもらって助かりました。また、利用したいです。

5つ星のうち5
東京都S.S. 様回答日:2015年10月
以前からの計画でセカンドカー購入がきっかけです。

5つ星のうち5
埼玉県I.R. 様回答日:2015年10月
雨の日でもクルマいじりができるようになりました。工事は1.5日予定でしたが、3人であっという間に1日で出来てしまいました。コンクリ固まるまでの時間とかなくて大丈夫?と少し思いましたが、予定より早かったので助かりました。

5つ星のうち5
栃木県S.T. 様回答日:2015年9月
ネット販売という不安はありましたが、インターネットならではの、様々な工事事例や商品を見れる事がメリットだと感じました。また、メールでの対応が迅速で丁寧だった事が安心感につながりました。

5つ星のうち5
高知県H.E. 様回答日:2015年9月
対応が早くて、値段も安いので、今後また利用する場合はまたよろしくお願いします。

5つ星のうち5
愛知県N.C. 様回答日:2015年8月
丁寧かつ迅速な対応に感謝しております。工事日程などこちらの都合に対して最大限動いて頂きました。工事自体もこちらが思っていた以上にスピーディーでした。もちろんとてもきれいです。カーポートがついたので、雨の日の車の乗り降りがものすごく便利になりました。

5つ星のうち5
愛知県A.M. 様回答日:2025年9月
ずっとカーポートが付けたかったけど、どうしてもいるものではなかったので後回しになっていた。年々猛暑が続いていた事がきっかけです。暑い日に乗った最初の車内の温度が低く感じられて、つけて良かったと思った。小雨の時の車の汚れが防げるといいなと思っています。

5つ星のうち5
静岡県G.M. 様回答日:2025年4月
昨年購入した車両は高さが2,250mmあり構造的にルーフには乗れず、洗車がとても大変で苦労していました。現在3連のカーポートはありますが高さが2,400mmの所があり納まりません。高さがクリアーできるカーポートを探した所エクスショップに辿り着きました。価格、保証等説明を聞き、クチコミにも後押しされ決めさせて頂きました。現地調査も準則にして頂き設置も近くの業者様により、2日で完了しました。設置後雨が降りましたが、車両が濡れないため雨垂れ等無くとても満足しております。また機会がありましたらその際は是非お願いしたいと思います。大変有り難う御座いました。
関連するブログ記事
関連するよくあるご質問
カーポートの設置と一緒に土間コンクリートを打設できますか?
【商品カテゴリ >カーポート】(ご質問No.707)
既存のカーポート屋根材の張り替えの依頼はできますか?
【商品カテゴリ >カーポート】(ご質問No.21)
以前購入したカーポートの部品のみを追加で購入する事は可能ですか?
【商品カテゴリ >カーポート】(ご質問No.48)
ワイドタイプのカーポートですが、横幅の切り詰めは可能ですか?
【商品カテゴリ >カーポート】(ご質問No.69)
カーポートって何ですか?
【商品カテゴリ >カーポート】(ご質問No.28910)
既存のカーポートの柱の高さを桁上げする事は可能ですか?
【商品カテゴリ >カーポート】(ご質問No.43)
既存のカーポートをいったん解体し、再度組み立てることは可能ですか?
【商品カテゴリ >カーポート】(ご質問No.46)
四国化成のFリードカーポート収納庫付きタイプは取り扱ってますか?
【商品カテゴリ >カーポート】(ご質問No.74)
既存カーポートの支柱を流用して、増設、縦列2台用のカーポートを設置することは可能ですか?
【商品カテゴリ >カーポート】(ご質問No.84)
四国化成のマイポートneoの取り扱いはありますか?
【商品カテゴリ >カーポート】(ご質問No.88)


















