バイク・自転車を雨風から保護
お家の収納能力をアップ
ガレージの保全・防犯にカーポートと合わせて
お庭に機能的スペースを作り出します
防犯、お家のドレスアップはこれで決まり
ガレージ商品とコンビで高級感を演出
各取扱メーカーの会社名、ロゴ及び商品名等は各社の商標または登録商標です。
| 日 | 月 | 火 | 水 | 木 | 金 | 土 |
|---|---|---|---|---|---|---|
| 1 | 2 | 3 | 4 | 5 | 6 | |
| 7 | 8 | 9 | 10 | 11 | 12 | 13 |
| 14 | 15 | 16 | 17 | 18 | 19 | 20 |
| 21 | 22 | 23 | 24 | 25 | 26 | 27 |
| 28 | 29 | 30 | 31 |
| 日 | 月 | 火 | 水 | 木 | 金 | 土 |
|---|---|---|---|---|---|---|
| 1 | 2 | 3 | ||||
| 4 | 5 | 6 | 7 | 8 | 9 | 10 |
| 11 | 12 | 13 | 14 | 15 | 16 | 17 |
| 18 | 19 | 20 | 21 | 22 | 23 | 24 |
| 25 | 26 | 27 | 28 | 29 | 30 | 31 |
…休業日(現場調査・工事は一部対応)
![]()
【受付時間】9:30 - 17:30(営業日)
![]()
【受付時間】9:30 - 17:30(営業日)
オペレーションスタッフ
エクステリアプランナー有資格者の私たちにお任せください。
ショップ責任者
神(じん)
エクステリア プランナー
有資格者61名
1/3
木附
枡田
重富
吉澤
吉野
小東
池本
山田
佐藤
白崎
新西
伊野
次田
浅川
南
西山
小林
梨田
長谷川
藤田
阿重田
村上
植松
内田
久田
小野
平戸
中島
長石
水口
榮
山崎
清水
室谷
安田
水谷
酒井
神吉
日下部
山中
深田
田中
水田
西田
一氏
岡本
北
坂本
中嶋
岩野
伊藤
上中
高山
竹本
犬井
佐伯
谷川
原
丸山
塚田
松本
上内
島田
森
梅田
松山
山本
小林
倉地
山根
中原
河野
村上
土井
岩破
南
井上
三ツ股
小田
依藤
永禮
林
加藤
石藤
駒井
末吉
山本
芦野
樽井
野上
岡田
木村
池田
西村
藤澤
達川
奥原
那須
小西
森下
1/3
今週のPick Upページ
![]()
ご利用頂いたお客様の口コミ・レビューを「お客様の声」として掲載しております。
全てのご感想を掲載しておりますので、エクスショップの評判としてご参考ください。
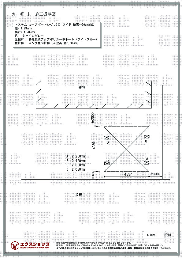
正式お見積りと一緒に提出させて頂いております「工事概略図面」もご覧頂けます。
商品や設置場所のご検討にお役立てください。
(写真No:18339718)
(カーポート)
| カラー | シャイングレー |
|---|---|
| サイズ | 幅 4,837mm 奥行 4,980mm |
| 屋根高等 | ロング柱28仕様(有効高 約2,800mm)×2本+ロング柱23仕様(有効高 約2,300mm)×2本+縦樋(700)×2本 |
| 屋根材等 | 熱線吸収アクアポリカーボネート(ライトブルー) |
| 工事方法 | 地域密着あんしん施工 |
電話にて注文しましたが、対応もよくこちらの都合により早急に工事見積もりおよび施工も早くしてほしいという我儘にも対応してくださり、大変感謝しております。
落ち着いた雰囲気のお住まいに、シャイングレーのカーブポートシグマIII ワイドが見事に調和してますね。カーポートのお仕上がりだけではなく、納期にもご満足頂き、大変嬉しく存じます。これからも提携施工店と協力して、お客様に100%ご満足頂ける施工を目指して参る所存にございます。また機会がございましたら、是非エクスショップにご用命ください。数多くの商品を取り揃え、心よりお待ち致しております。
当サイトは以下のセキュリティ機能や保護認定等を備えています。安心してお申し込みください
当サイトは256ビットSSL暗号化に対応しています。入力した個人情報は暗号化して送られますので、安心してご利用ください。
当社はJADMAの正会員です。同協会は法律で位置づけられた団体で、消費者の利益保護と業界の健全な発展の為に活動しています。
こちらの工事に使用しているエクステリア
![]()
ネスカ R 2台用(ラウンドスタイル)

工事費・税込
223,500円〜
総合平均評価(星5つ評価)
4.76
商品レビュー数
1268件
ネスカ R 2台用(ラウンドスタイル)は大きなアール仕様の屋根が特徴的な横並び2台駐車可能のカーポートです。標準柱が2200mmとなっており大半の車種に対応可能。耐風性能は基準風速Vo=40m/s、耐積雪性能は20cm相当の耐性があります。
この商品の詳細へ
無料お見積り・現場調査・ご注文もこちら
この商品のレビュー
商品レビュー1,268件

東京都 江戸川区 K.A.様
とても満足していますが屋根が雨などの吹き込み防止など一工夫あると更に大満足になります。

東京都 あきる野市 T.S.様
標準仕様で高さが220cmあり十分。カラーも希望のものが選択でき、周囲との調和が図れた。

高知県 香美市 N.N.様
カーポートの下側、内面は問題有りませんが、外側の上側の方で、シーラントがされてるのにちょっと疑問持ちました。隣の一基目のカーポートはシーラントされていないので。

佐賀県 佐賀市 S.N.様
見た目もスッキリしていて柱も思ったほど太くなく設置後の駐車もスムーズです。

和歌山県 和歌山市 I.M.様
幅=3,624mm 奥行=5,686mm 色:シャイングレー 屋根材:ポリカーボネート(クリアブラウン) 柱仕様:標準柱仕様(有効高 約2,200mm)

千葉県 市原市 I.T.様
パネルの色や支柱の色合いなども良く満足しております。

埼玉県 さいたま市 S.M.様
商品は満足です、現地確認の担当者も丁寧に説明して頂きました、施工の方も初めにいろいろと説明して頂いてからの施工でしたが、施工完了時の商品が汚れたままだったのが残念です。

東京都 八王子市 A.S.様
思ったよりも高さがあったので、2.2mの高さで 良かったです。 欲を言えば、もう少し日光を遮断してくれれば良かったのですけど。

東京都 杉並区 I.T.様
前回施工して頂いた自転車置き場の時と同様に、非常に満足です。 ネスカは、柱が多少高いので仕上り全体の感じが良いように思います。

埼玉県 北本市 K.Y.様
車2台が余裕に入り、強風でも揺ら足りしないので、重宝しています。

埼玉県 川口市 O.K.様
暑くなってきたのもあり、カーポートがあると直射日光を遮れるし、梅雨の時期を前にして設置できて満足している。

兵庫県 宍粟市 F.M.様
高さもあり、フェンスともマッチしていて、良いと思います。

福岡県 北九州市 I.Y.様
家の雰囲気に合ってて、友人からも高評価です!

福岡県 宗像市 U.F.様
黒を基調とした外観で高級感もあり凄く満足しています。

岡山県 赤磐市 M.Y.様
ガゼボを建てるつもりでしたがカーポートにしました。 カーポートにしたら解放感もありとても良かったです。 現在はウッドデッキを工事中です。

広島県 広島市 M.A.様
写真のイメージよりどっしりとした感じがとても良かった。 施工を受けてくれた業者の方と色を相談して決めたが思った以上に満足した。
関連するお客様の声

5つ星のうち4
長野県O.H. 様回答日:2015年4月
こちらの都合で、担当者からの電話を受け取ることが出来ず、全てネットを通じての契約になってしまいましたが、誠意ある対応をしてくださり、細かい見積もりも何度もこちらに応じて対応してくださり、ありがとうございました。

5つ星のうち4
京都府Y.D. 様回答日:2013年8月
工事見積もりや現地調査など各担当者の方は、親切丁寧に対応してくれたので良かったです。値段も安く満足しました。

5つ星のうち5
岡山県N.M. 様回答日:2021年1月
現地見積もりも直ぐに来られ対応は早かったです。費用も他店での見積もりより安かったです。こちらの都合で色々と変更がありましたが柔軟に対応してくださりました。施工の方の仕事や対応は丁寧でした。またお願いしようと思います。

5つ星のうち4
千葉県A.D. 様回答日:2013年3月
施工不備がありましたが、早急に対応して頂き良かったです。色々注文しましたが親切に対応して頂き良かったです。又、機会がありましたらお願いしたいと思います。

5つ星のうち4
兵庫県Y.Y. 様回答日:2014年1月
こちらの都合や、変更にも、親切に対応して頂き、発注してよかったと思っています。施工も丁寧にしていだだきました。

5つ星のうち5
大阪府H.S. 様回答日:2012年3月
こちらの要望を聞いて頂き、丁寧なご説明、早急な対応に満足しております。その他のエクステリアの施工も、エクスショップさんにお願いしようかなと思いました。

5つ星のうち5
大阪府N.R. 様回答日:2015年11月
お問い合わせから注文までにこちらの都合で結構時間をかかりましたが、担当の方がいつもご丁寧に対応してくれて非常に助かりました。今後ともぜひ利用したいともいますが、よろしくお願いします。

5つ星のうち5
兵庫県S.T. 様回答日:2014年7月
担当者さんが、こちらの都合に良く対応して頂き、また工事を受け持って頂いた業者さんの対応が親切だったので。

5つ星のうち4
千葉県S.K. 様回答日:2012年6月
こちらの都合もありましたが、予定よりもかなり工期が掛かった。インターネットでの発注だったので、施工やメンテナンスが不安でしたが、台風が来ている時に自分で補助柱の取り付けが出来ずに困って電話をしたら、施工業者の方がすぐに来て、取り付けて下さって大変感謝しています。

5つ星のうち4
静岡県S.M. 様回答日:2011年3月
ネットで注文して、大丈夫かと心配いたしましたが、見積もり等も、早急な対応をしていただきで安心できました。施工日も、こちらの希望する日に実施していただき大変満足しております。
関連するブログ記事
関連するよくあるご質問
カーポートの設置と一緒に土間コンクリートを打設できますか?
【商品カテゴリ >カーポート】(ご質問No.707)
既存のカーポート屋根材の張り替えの依頼はできますか?
【商品カテゴリ >カーポート】(ご質問No.21)
以前購入したカーポートの部品のみを追加で購入する事は可能ですか?
【商品カテゴリ >カーポート】(ご質問No.48)
ワイドタイプのカーポートですが、横幅の切り詰めは可能ですか?
【商品カテゴリ >カーポート】(ご質問No.69)
カーポートって何ですか?
【商品カテゴリ >カーポート】(ご質問No.28910)
既存のカーポートの柱の高さを桁上げする事は可能ですか?
【商品カテゴリ >カーポート】(ご質問No.43)
既存のカーポートをいったん解体し、再度組み立てることは可能ですか?
【商品カテゴリ >カーポート】(ご質問No.46)
四国化成のFリードカーポート収納庫付きタイプは取り扱ってますか?
【商品カテゴリ >カーポート】(ご質問No.74)
既存カーポートの支柱を流用して、増設、縦列2台用のカーポートを設置することは可能ですか?
【商品カテゴリ >カーポート】(ご質問No.84)
四国化成のマイポートneoの取り扱いはありますか?
【商品カテゴリ >カーポート】(ご質問No.88)


















