バイク・自転車を雨風から保護
お家の収納能力をアップ
ガレージの保全・防犯にカーポートと合わせて
お庭に機能的スペースを作り出します
防犯、お家のドレスアップはこれで決まり
ガレージ商品とコンビで高級感を演出
各取扱メーカーの会社名、ロゴ及び商品名等は各社の商標または登録商標です。
| 日 | 月 | 火 | 水 | 木 | 金 | 土 |
|---|---|---|---|---|---|---|
| 1 | ||||||
| 2 | 3 | 4 | 5 | 6 | 7 | 8 |
| 9 | 10 | 11 | 12 | 13 | 14 | 15 |
| 16 | 17 | 18 | 19 | 20 | 21 | 22 |
| 23 | 24 | 25 | 26 | 27 | 28 | 29 |
| 30 |
| 日 | 月 | 火 | 水 | 木 | 金 | 土 |
|---|---|---|---|---|---|---|
| 1 | 2 | 3 | 4 | 5 | 6 | |
| 7 | 8 | 9 | 10 | 11 | 12 | 13 |
| 14 | 15 | 16 | 17 | 18 | 19 | 20 |
| 21 | 22 | 23 | 24 | 25 | 26 | 27 |
| 28 | 29 | 30 | 31 |
…休業日(現場調査・工事は一部対応)
![]()
【受付時間】9:30 - 17:30(営業日)
![]()
【受付時間】9:30 - 17:30(営業日)
オペレーションスタッフ
エクステリアプランナー有資格者の私たちにお任せください。
ショップ責任者
神(じん)
エクステリア プランナー
有資格者61名
1/3
木附
枡田
重富
吉澤
吉野
小東
池本
山田
佐藤
白崎
新西
伊野
次田
浅川
南
西山
小林
梨田
長谷川
藤田
阿重田
村上
植松
内田
久田
小野
平戸
中島
長石
水口
榮
山崎
清水
室谷
安田
水谷
酒井
神吉
日下部
山中
深田
田中
水田
西田
一氏
岡本
北
坂本
中嶋
岩野
伊藤
上中
高山
竹本
犬井
佐伯
谷川
原
丸山
塚田
松本
上内
島田
森
梅田
松山
山本
小林
倉地
山根
中原
河野
村上
土井
岩破
南
井上
三ツ股
小田
依藤
永禮
林
加藤
石藤
駒井
末吉
山本
芦野
樽井
野上
岡田
木村
池田
西村
藤澤
達川
奥原
那須
小西
森下
1/3
今週のPick Upページ
![]()
ご利用頂いたお客様の口コミ・レビューを「お客様の声」として掲載しております。
全てのご感想を掲載しておりますので、エクスショップの評判としてご参考ください。
正式お見積りと一緒に提出させて頂いております「工事概略図面」もご覧頂けます。
商品や設置場所のご検討にお役立てください。
(写真No:20234221)
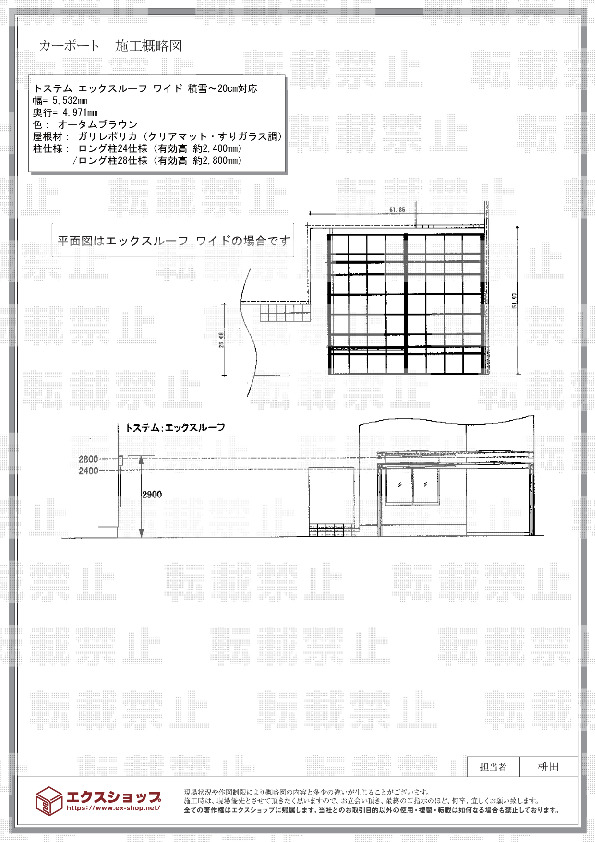
(カーポート)
| カラー | オータムブラウン |
|---|---|
| サイズ | 幅 5,532mm 奥行 4,971mm |
| 屋根高等 | ロング柱24仕様(有効高 約2,400mm) |
| 屋根材等 | ガリレポリカ(クリアマット・すりガラス調) |
| 工事方法 | 地域密着あんしん施工 |
迅速な対応と丁寧な施工で満足しました。機会があれば、また注文したいと思います。
この度は、エックスルーフワイドの施工ご依頼を頂き誠に有り難うございます。弊社では、迅速かつ丁寧な対応を日々心がけておりますので、このようなお言葉を頂戴でき、大変光栄に存じます。上品なお仕上がりでございますが、しっかりとした存在感もあり、とても素敵なお仕上がりでございますね。ガリレポリカ(クリアマット・すりガラス調)の屋根材で明るさも十分にあり、快適にご利用頂けるものと存じます。今後も、お客様にご満足頂ける様、日々精進して参りますので、また機会がございましたら是非エクスショップをご利用下さいますよう、宜しくお願い致します。
当サイトは以下のセキュリティ機能や保護認定等を備えています。安心してお申し込みください
当サイトは256ビットSSL暗号化に対応しています。入力した個人情報は暗号化して送られますので、安心してご利用ください。
当社はJADMAの正会員です。同協会は法律で位置づけられた団体で、消費者の利益保護と業界の健全な発展の為に活動しています。
こちらの工事に使用しているエクステリア
![]()
ネスカ F 2台用(フラットスタイル)

工事費・税込
368,000円〜
総合平均評価(星5つ評価)
4.72
商品レビュー数
218件
ネスカ F 2台用(フラットスタイル)は直線状に伸びたフラットな屋根が特徴の横並びに駐車が可能なカーポートです。全光線透過率の異なる6タイプの屋根材よりお選びいただけます。耐風性能は基準風速Vo=36m・耐積雪性能は20cmまで保持しています。※屋根材:ポリカーボネート(ブラックマット)は同色のサイドパネルの設定が無いため、サイドパネル:ポリカーボネート(クリアブルー/クリアブラウン)の価格で算出しています。
この商品の詳細へ
無料お見積り・現場調査・ご注文もこちら
この商品のレビュー
商品レビュー218件

東京都 横浜市 S.M.様
家屋に合うように柱も屋根も黒にしたがバランスがよく非常に満足している

大阪府 茨木市 T.K.様
フラットで見た目がかっこいい!ロング柱にして掃除がしやすいのでロングにしてよかった。屋根の熱射ポリカの青みがかかった感じもよかった。

香川県 高松市 A.N.様
スタイリッシュでとってもカッコいいです。ブラックじゃなければもっと安い物もあったけど、妥協せずブラックにして良かったです。

京都府 長岡京市 N.D.様
設置したことで外観のカッコよさがましました!

愛媛県 南宇和郡愛南町 T.D.様
雨でも気にせず車に乗り込むことができ、荷物や子どもの移動など大変便利になりました。また紫外線や鳥の糞などから車を守ることもでき大満足です。

香川県 三豊市 S.T.様
質感がとても高い。しっかりと施工してもらった。

千葉県 流山市 M.M.様
車2台分と通路まで確保できて家にはピッタリの商品と感じてます。

兵庫県 加古川市 T.N.様
商品は良いと思う。これから先をみないとわからない点もある。

群馬県 高崎市 A.Y.様
雨の日に、車が雨ざらしになっていたのが気になり、購入しました。雨だけでなく、紫外線も防いでくれるということで期待しています。 エクスショップさんは見積もりも早く、申し込みから作業日の決定、施工も2日間と迅速に対応していただきました。

東京都 稲城市 S.J.様
日除、雨除けの機能面や、デザインともに満足しております。

岐阜県 岐阜市 K.Y.様
現時点では何も有りません! 大変満足しています!

岐阜県 岐阜市 K.Y.様
現時点では何も有りません! 大変満足しています!

栃木県 小山市 S.J.様
デザインがスタイリッシュでとても満足しています。

大阪府 泉佐野市 N.M.様
デザインが恰好良い。今朝も自分も車も雨に濡れずに済みました。

愛知県 名古屋市 N.A.様
インターネットで選んだ天井材が、予想より青く見えました。

愛知県 江南市 A.S.様
想定通りのカーポートがつけれ満足している。

埼玉県 さいたま市 H.E.様
すっきりしたデザインに満足している。建物との調和もよくとれている。

山梨県 南アルプス市 K.S.様
家全体の景観を邪魔することなくシンプルなデザインで気に入った。
関連するお客様の声

5つ星のうち5
愛知県N.M. 様回答日:2024年1月
新車の購入を機に建てたいと思いました。建てる前は、雨に濡れたり、車の雪かきが必要だったりで不便でした。また、うちがワンランクアップした様な気がします。エクスショップさんとは、電話とメールでのやり取りでしたが、スムーズな対応で、難しい事は何もなかったです。

5つ星のうち5
岐阜県K.Y. 様回答日:2023年7月
今まで雨ざらしだったのでカーポートが欲しく探していた所お値段も、対応もとても満足が出来たのが決め手になりました!もちろんこれからは車の汚れ?塗装焼け等気にしず、停めて置くことが出来るので助かります!そして何よりこちらのわがままや色々な事を聴いて頂き本当にありがとうございました!!

5つ星のうち5
福岡県N.N. 様回答日:2022年12月
カーポート車の手入れが楽になりました。境界フェンス お隣さんとの目線など気になりがちでしたがフェンスを建てた事でかなり気持ちが変わりました(お互いに)アプローチ側フェンス こちらもお隣の窓など目線に入らなくなりとても満足しています。土間コンクリート落ち葉の掃除などとても楽になりました。

5つ星のうち5
兵庫県K.R. 様回答日:2022年9月
前々から欲しい商品でした。陽当たりが良すぎて、暑いぐらいだったので施工後、少しでも涼しくなればと思い設置しました。選んだ商品を設置後、暗くなり過ぎず、程よく陽が当たる感じで満足です。契約から約1ヶ月ぐらいかな?早急な対応でスムーズに設置して頂けたので良かったです。

5つ星のうち5
大阪府O.S. 様回答日:2020年10月
今回ウッドデッキとカーポートの施工を発注しました。ウッドデッキについては居間から裏庭にたいへん出やすくなり、また草の生える場所が少なくなり満足しています。カーポートについては雨よけにもなり、また家の外観がよくなったと思います。 エクスショップを利用した理由はパソコン画面にて商品の概要がよく分かったためです。

5つ星のうち5
愛知県A.M. 様回答日:2025年9月
ずっとカーポートが付けたかったけど、どうしてもいるものではなかったので後回しになっていた。年々猛暑が続いていた事がきっかけです。暑い日に乗った最初の車内の温度が低く感じられて、つけて良かったと思った。小雨の時の車の汚れが防げるといいなと思っています。

5つ星のうち5
静岡県G.M. 様回答日:2025年4月
昨年購入した車両は高さが2,250mmあり構造的にルーフには乗れず、洗車がとても大変で苦労していました。現在3連のカーポートはありますが高さが2,400mmの所があり納まりません。高さがクリアーできるカーポートを探した所エクスショップに辿り着きました。価格、保証等説明を聞き、クチコミにも後押しされ決めさせて頂きました。現地調査も準則にして頂き設置も近くの業者様により、2日で完了しました。設置後雨が降りましたが、車両が濡れないため雨垂れ等無くとても満足しております。また機会がありましたらその際は是非お願いしたいと思います。大変有り難う御座いました。

5つ星のうち5
長野県N.Y. 様回答日:2025年4月
友人の話を聞いて購入を考えました。初めてのマイホームということもあり、また積雪も多い地域であったことから、カーポートをつけたいと考えていました。今回購入したことで車に積もった雪を降ろすことなく快適に乗車できそうなので大変助かります。購入してよかったです。ありがとうございました。
関連するブログ記事
関連するよくあるご質問
カーポートの設置と一緒に土間コンクリートを打設できますか?
【商品カテゴリ >カーポート】(ご質問No.707)
既存のカーポート屋根材の張り替えの依頼はできますか?
【商品カテゴリ >カーポート】(ご質問No.21)
以前購入したカーポートの部品のみを追加で購入する事は可能ですか?
【商品カテゴリ >カーポート】(ご質問No.48)
ワイドタイプのカーポートですが、横幅の切り詰めは可能ですか?
【商品カテゴリ >カーポート】(ご質問No.69)
カーポートって何ですか?
【商品カテゴリ >カーポート】(ご質問No.28910)
既存のカーポートの柱の高さを桁上げする事は可能ですか?
【商品カテゴリ >カーポート】(ご質問No.43)
既存のカーポートをいったん解体し、再度組み立てることは可能ですか?
【商品カテゴリ >カーポート】(ご質問No.46)
四国化成のFリードカーポート収納庫付きタイプは取り扱ってますか?
【商品カテゴリ >カーポート】(ご質問No.74)
既存カーポートの支柱を流用して、増設、縦列2台用のカーポートを設置することは可能ですか?
【商品カテゴリ >カーポート】(ご質問No.84)
四国化成のマイポートneoの取り扱いはありますか?
【商品カテゴリ >カーポート】(ご質問No.88)


















