各取扱メーカーの会社名、ロゴ及び商品名等は各社の商標または登録商標です。
| 日 | 月 | 火 | 水 | 木 | 金 | 土 |
|---|---|---|---|---|---|---|
| 1 | 2 | 3 | 4 | 5 | 6 | 7 |
| 8 | 9 | 10 | 11 | 12 | 13 | 14 |
| 15 | 16 | 17 | 18 | 19 | 20 | 21 |
| 22 | 23 | 24 | 25 | 26 | 27 | 28 |
| 29 | 30 | 31 |
| 日 | 月 | 火 | 水 | 木 | 金 | 土 |
|---|---|---|---|---|---|---|
| 1 | 2 | 3 | 4 | |||
| 5 | 6 | 7 | 8 | 9 | 10 | 11 |
| 12 | 13 | 14 | 15 | 16 | 17 | 18 |
| 19 | 20 | 21 | 22 | 23 | 24 | 25 |
| 26 | 27 | 28 | 29 | 30 |
…休業日(現場調査・工事は一部対応)
![]()
【受付時間】9:30 - 17:30(営業日)
![]()
【受付時間】9:30 - 17:30(営業日)
オペレーションスタッフ
エクステリアプランナー有資格者の私たちにお任せください。
ショップ責任者
神(じん)
エクステリア プランナー
有資格者61名
1/3
1/3
今週のPick Upページ
![]()
ご利用頂いたお客様の口コミ・レビューを「お客様の声」として掲載しております。
全てのご感想を掲載しておりますので、エクスショップの評判としてご参考ください。
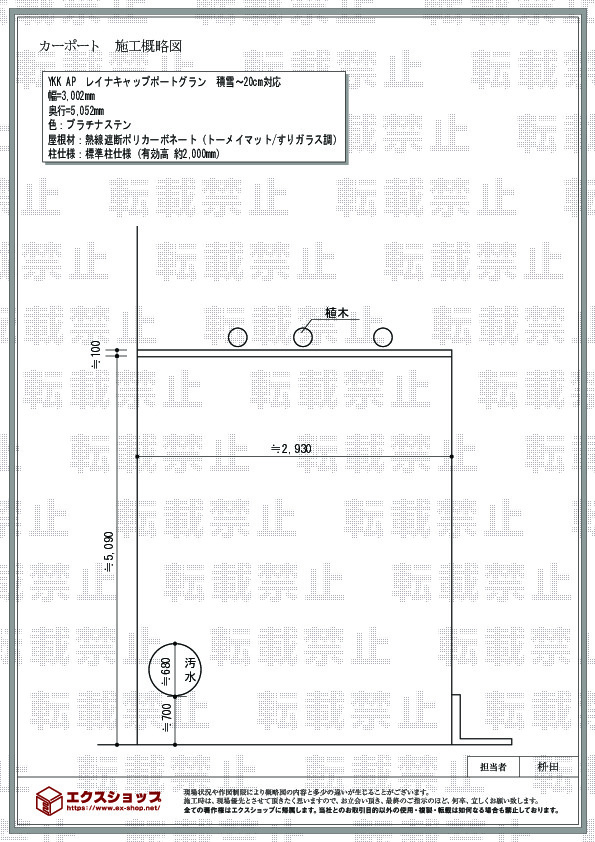
正式お見積りと一緒に提出させて頂いております「工事概略図面」もご覧頂けます。
商品や設置場所のご検討にお役立てください。
(写真No:21376323)
(カーポート)
| カラー | プラチナステン |
|---|---|
| サイズ | 幅 3,002mm 奥行 5,052mm |
| 屋根高等 | 標準柱仕様(有効高 約2,000mm) |
| 屋根材等 | 熱線遮断ポリカーボネート(トーメイマット/すりガラス調) |
| 工事方法 | 地域密着あんしん施工 |
大体において満足しています。
この度は、エクスショップをご利用くださいまして、誠に有り難うございます。お客様より、ご満足とのお言葉を頂き、大変嬉しく存じます。弊社はお客様にご満足して頂けるよう、日々、迅速で親切・丁寧な対応を心掛けております。今後も、お客様に100%ご満足頂けるよう、努めて参りますので、また機会がございましたら、ぜひエクスショップにご用命くださいますよう、宜しくお願い致します。
当サイトは以下のセキュリティ機能や保護認定等を備えています。安心してお申し込みください
当サイトはSSL暗号化に対応しています。入力した個人情報は暗号化して送られますので、安心してご利用ください。
当社はJADMAの正会員です。同協会は法律で位置づけられた団体で、消費者の利益保護と業界の健全な発展の為に活動しています。
こちらの工事に使用しているエクステリア
![]()
アリュース キャップ 600タイプ 単体セット

工事費・税込
172,000円〜
商品レビュー数
47件
アリュース キャップ 600タイプ 単体セットは垂れ下がり壁が付いている片流れスタイルの1台用カーポートです。サイドパネルを設置しなくても雨風の吹き込みや視線を緩和できます。Vo=34m/sの基準風速・積雪20cmまでの耐積雪性能を持ち合わせています。
この商品の詳細へ
無料お見積り・現場調査・ご注文もこちら