バイク・自転車を雨風から保護
お家の収納能力をアップ
ガレージの保全・防犯にカーポートと合わせて
お庭に機能的スペースを作り出します
防犯、お家のドレスアップはこれで決まり
ガレージ商品とコンビで高級感を演出
各取扱メーカーの会社名、ロゴ及び商品名等は各社の商標または登録商標です。
| 日 | 月 | 火 | 水 | 木 | 金 | 土 |
|---|---|---|---|---|---|---|
| 1 | 2 | 3 | ||||
| 4 | 5 | 6 | 7 | 8 | 9 | 10 |
| 11 | 12 | 13 | 14 | 15 | 16 | 17 |
| 18 | 19 | 20 | 21 | 22 | 23 | 24 |
| 25 | 26 | 27 | 28 | 29 | 30 | 31 |
| 日 | 月 | 火 | 水 | 木 | 金 | 土 |
|---|---|---|---|---|---|---|
| 1 | 2 | 3 | 4 | 5 | 6 | 7 |
| 8 | 9 | 10 | 11 | 12 | 13 | 14 |
| 15 | 16 | 17 | 18 | 19 | 20 | 21 |
| 22 | 23 | 24 | 25 | 26 | 27 | 28 |
…休業日(現場調査・工事は一部対応)
![]()
【受付時間】9:30 - 17:30(営業日)
![]()
【受付時間】9:30 - 17:30(営業日)
オペレーションスタッフ
エクステリアプランナー有資格者の私たちにお任せください。
ショップ責任者
神(じん)
エクステリア プランナー
有資格者61名
1/3
木附
枡田
重富
吉澤
吉野
小東
池本
山田
佐藤
白崎
新西
伊野
次田
南
西山
小林
阿重田
梨田
長谷川
藤田
村上
平戸
植松
内田
久田
中島
長石
水口
榮
山崎
清水
室谷
安田
水谷
小野
酒井
一氏
神吉
日下部
山中
深田
田中
水田
西田
岡本
丸山
北
坂本
中嶋
岩野
伊藤
上中
高山
原
犬井
佐伯
谷川
塚田
松本
小林
森下
上内
島田
森
梅田
松山
山本
小西
倉地
山根
中原
河野
村上
土井
岩破
南
井上
三ツ股
小田
依藤
永禮
林
加藤
石藤
駒井
末吉
山本
芦野
樽井
野上
岡田
木村
池田
西村
藤澤
達川
奥原
那須
1/3
今週のPick Upページ
![]()
ご利用頂いたお客様の口コミ・レビューを「お客様の声」として掲載しております。
全てのご感想を掲載しておりますので、エクスショップの評判としてご参考ください。
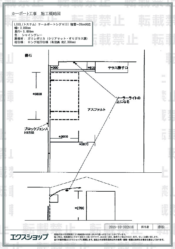
正式お見積りと一緒に提出させて頂いております「工事概略図面」もご覧頂けます。
商品や設置場所のご検討にお役立てください。
(写真No:30251831)
(カーポート)
| カラー | シャイングレー |
|---|---|
| サイズ | 幅 3,000mm 奥行 5,686mm |
| 屋根高等 | ロング柱23仕様(有効高 約2,300mm) |
| 屋根材等 | ガリレポリカ(クリアマット・すりガラス調) |
| 工事方法 | 地域密着あんしん施工 |
隣の2階の窓からの目線が気にならなくなった。片側だけの柱なので、車の出し入れもしやすそうです。下見で工事業者と細かく打ち合わせしたのに工事当日も立ち会わなければならなかった事が意味がない。
テールポートシグマIII の施工をご依頼頂きまして、誠に有り難うございます。柱側に垂れたガリレポリカ(クリアマット・すりガラス調)の屋根が、雨や強い日差しを遮るだけではなく、外部からの視線も遮りますね。明るさはそのままですので、快適にご使用頂けるものと存じます。現場調査の際に確認をさせて頂いておりますが、やはり、施工時の状況を優先するということで、少なくとも施工開始時のお立会いをお願いしております。お忙しいなか、お立合い頂きまして、誠に有り難うございました。今後また機会がございましたら、是非エクスショップにご用命ください。またのご利用を、心よりお待ち致しております。
当サイトは以下のセキュリティ機能や保護認定等を備えています。安心してお申し込みください
当サイトは256ビットSSL暗号化に対応しています。入力した個人情報は暗号化して送られますので、安心してご利用ください。
当社はJADMAの正会員です。同協会は法律で位置づけられた団体で、消費者の利益保護と業界の健全な発展の為に活動しています。
こちらの工事に使用しているエクステリア
![]()
フーゴ R 袖壁 1台用(ラウンドスタイル)

工事費・税込
280,500円〜
総合平均評価(星5つ評価)
5
商品レビュー数
5件
フーゴ R 袖壁 1台用(ラウンドスタイル)は側面からの風雪雨を減少させる対応力が特徴のカーポートです。H22柱を標準的に装備しており、高さのある車にも余裕で対応します。耐風性能は基準風速Vo=34m/sに適合し、20cmの積雪にも対応可能です。
この商品の詳細へ
無料お見積り・現場調査・ご注文もこちら
関連するお客様の声

5つ星のうち5
埼玉県M.J. 様回答日:2016年6月
赤い車を買ったので、車の日焼けを気にして、屋根が欲しいな…と。工事業者の対応もとても良く、設置して頂いた商品にもとても満足しています。

5つ星のうち5
大阪府H.H. 様回答日:2016年5月
以前のカーポートは両側に柱がありましたが、今回は柱が片側だけになり、家とカーポートの間が広く感じられて快適になりました。

5つ星のうち5
大阪府O.T. 様回答日:2015年11月
カーポート、サイクルポートを付けた事によって雨に濡れなくなったのは勿論、隣近所からの目線も気にならなくなりました!

5つ星のうち5
埼玉県H.H. 様回答日:2019年6月
以前に片側を施工していただき、今回もう片側を合わせて2台用に施工していただき見た目にも剛性面も良くなったと思います。やっぱり一番は車を雨や暑い日差しから守れるということです。

5つ星のうち5
三重県Y.Y. 様回答日:2017年10月
線路沿いと言う事もあり、目線、鉄粉が気になりフェンスをお願いしました。施工後、目線は気にならなくなりました。カーポートも物干し付きで洗濯もたくさん干せるようになりました。

5つ星のうち4
千葉県S.S. 様回答日:2018年10月
サイドパネルを取付のため、支柱と車との間隔等にて、車の出し入れが気になったが、施工後、車の出し入れには、特に変わりなく、施工前と変わりなく出し入れができた。また、サイドパネルのおかげで、雨を気にせず車内の清掃等ができるようになった。

5つ星のうち5
東京都B.S. 様回答日:2016年8月
●車を長く大切に乗りたいので。●設置金額が予想より安かった。●下見の際の工事業者の方がとても丁寧だった。

5つ星のうち5
三重県S.S. 様回答日:2016年5月
雨に濡れることなく車から荷物の出し入れも出来るようになり、明るい色なので思ったほど日差しを遮る事もなく、設置して良かったと思います。

5つ星のうち4
千葉県G.K. 様回答日:2019年4月
もともとオープンであった庭に 二台用カーポートと土間コンクリート(一台分の追加)を施工した事で 道路からの目線が気にならなくなり、また屋根がついた事で車の汚れが気にならなくなった。

5つ星のうち5
滋賀県T.K. 様回答日:2015年5月
工事が手際よくこちらの要望通りして頂き満足です。これから梅雨に入る季節なので雨も気にする事なく車に乗れ、車からの荷物も急ぐことなく出し入れできます。
関連するブログ記事
関連するよくあるご質問
カーポートの設置と一緒に土間コンクリートを打設できますか?
【商品カテゴリ >カーポート】(ご質問No.707)
既存のカーポート屋根材の張り替えの依頼はできますか?
【商品カテゴリ >カーポート】(ご質問No.21)
以前購入したカーポートの部品のみを追加で購入する事は可能ですか?
【商品カテゴリ >カーポート】(ご質問No.48)
ワイドタイプのカーポートですが、横幅の切り詰めは可能ですか?
【商品カテゴリ >カーポート】(ご質問No.69)
カーポートって何ですか?
【商品カテゴリ >カーポート】(ご質問No.28910)
既存のカーポートの柱の高さを桁上げする事は可能ですか?
【商品カテゴリ >カーポート】(ご質問No.43)
既存のカーポートをいったん解体し、再度組み立てることは可能ですか?
【商品カテゴリ >カーポート】(ご質問No.46)
四国化成のFリードカーポート収納庫付きタイプは取り扱ってますか?
【商品カテゴリ >カーポート】(ご質問No.74)
既存カーポートの支柱を流用して、増設、縦列2台用のカーポートを設置することは可能ですか?
【商品カテゴリ >カーポート】(ご質問No.84)
四国化成のマイポートneoの取り扱いはありますか?
【商品カテゴリ >カーポート】(ご質問No.88)


















