バイク・自転車を雨風から保護
お家の収納能力をアップ
ガレージの保全・防犯にカーポートと合わせて
お庭に機能的スペースを作り出します
防犯、お家のドレスアップはこれで決まり
ガレージ商品とコンビで高級感を演出
各取扱メーカーの会社名、ロゴ及び商品名等は各社の商標または登録商標です。
| 日 | 月 | 火 | 水 | 木 | 金 | 土 |
|---|---|---|---|---|---|---|
| 1 | 2 | 3 | ||||
| 4 | 5 | 6 | 7 | 8 | 9 | 10 |
| 11 | 12 | 13 | 14 | 15 | 16 | 17 |
| 18 | 19 | 20 | 21 | 22 | 23 | 24 |
| 25 | 26 | 27 | 28 | 29 | 30 | 31 |
| 日 | 月 | 火 | 水 | 木 | 金 | 土 |
|---|---|---|---|---|---|---|
| 1 | 2 | 3 | 4 | 5 | 6 | 7 |
| 8 | 9 | 10 | 11 | 12 | 13 | 14 |
| 15 | 16 | 17 | 18 | 19 | 20 | 21 |
| 22 | 23 | 24 | 25 | 26 | 27 | 28 |
…休業日(現場調査・工事は一部対応)
![]()
【受付時間】9:30 - 17:30(営業日)
![]()
【受付時間】9:30 - 17:30(営業日)
オペレーションスタッフ
エクステリアプランナー有資格者の私たちにお任せください。
ショップ責任者
神(じん)
エクステリア プランナー
有資格者61名
1/3
木附
枡田
重富
吉澤
吉野
小東
池本
山田
佐藤
白崎
新西
伊野
次田
南
西山
小林
阿重田
梨田
長谷川
藤田
村上
平戸
植松
内田
久田
中島
長石
水口
榮
山崎
清水
室谷
安田
水谷
小野
酒井
一氏
神吉
日下部
山中
深田
田中
水田
西田
岡本
丸山
北
坂本
中嶋
岩野
伊藤
上中
高山
原
犬井
佐伯
谷川
塚田
松本
小林
森下
上内
島田
森
梅田
松山
山本
小西
倉地
山根
中原
河野
村上
土井
岩破
南
井上
三ツ股
小田
依藤
永禮
林
加藤
石藤
駒井
末吉
山本
芦野
樽井
野上
岡田
木村
池田
西村
藤澤
達川
奥原
那須
1/3
今週のPick Upページ
![]()
ご利用頂いたお客様の口コミ・レビューを「お客様の声」として掲載しております。
全てのご感想を掲載しておりますので、エクスショップの評判としてご参考ください。
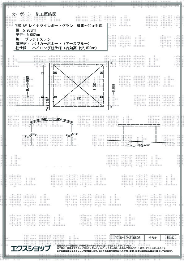
正式お見積りと一緒に提出させて頂いております「工事概略図面」もご覧頂けます。
商品や設置場所のご検討にお役立てください。
(写真No:31060331)
(カーポート)
| カラー | プラチナステン |
|---|---|
| サイズ | 幅 5,983mm 奥行 5,052mm |
| 屋根高等 | ハイロング柱仕様(有効高 約2,800mm) |
| 屋根材等 | ポリカーボネート(アースブルー) |
| 工事方法 | 地域密着あんしん施工 |
別になし
レイナツインポートグランの施工をご依頼頂きまして、誠に有り難うございます。プラチナステンのフレームとポリカーボネート(アースブルー)の屋根材の取り合わせが、明るく、スタイリッシュなカーポートでございますね。圧迫感の無いお仕上がりに、ご満足頂けましたら幸いでございます。これからも、お客様の笑顔の為に日々努力して参りますので、また、機会がございましたら、是非エクスショップをご利用頂きますよう、宜しくお願い致します。
当サイトは以下のセキュリティ機能や保護認定等を備えています。安心してお申し込みください
当サイトは256ビットSSL暗号化に対応しています。入力した個人情報は暗号化して送られますので、安心してご利用ください。
当社はJADMAの正会員です。同協会は法律で位置づけられた団体で、消費者の利益保護と業界の健全な発展の為に活動しています。
こちらの工事に使用しているエクステリア
![]()
アリュース 600タイプ 2台用

工事費・税込
215,900円〜
総合平均評価(星5つ評価)
4.84
商品レビュー数
113件
アリュース 600タイプ 2台用は継ぎ目のない大きなアール屋根が特徴的な両側支持タイプの2台用カーポートです。柱・梁には水での急速冷却により高強度化(T6処理)したアルミニウム合金を用いており、基準風速Vo=40m/s・耐積雪性能20cmを確保しています。
この商品の詳細へ
無料お見積り・現場調査・ご注文もこちら
この商品のレビュー
商品レビュー113件

茨城県 古河市 S.M.様
色々アドバイスもいただき良い買い物が出来たと思います。

静岡県 浜松市 A.T.様
急遽ハツリ工事が発生しましたが、職人さんも快く施工してくれました。 仕上がりも綺麗で満足してます。

福岡県 久留米市 R.K.様
仕様は2台用ですが、2台駐車は難しいと思います。私は1台で使用するので、ゆっくり停めれて満足です。

兵庫県 三木市 T.Y.様
長年、雨天時は不便だったのが快適に。早く施工しなかったのを後悔。 出入りの宅配業者、郵便の方が雨天時の仕分け作業にも使用しており有り難がっている

群馬県 伊勢崎市 K.H.様
外観はとても良い。 荒天の時を迎えないとそれ以上は言えない。

岡山県 和気郡和気町 N.K.様
大変満足です。 土地が広いのでもうワンサイズ大きい物でもよかったかなと思います。

埼玉県 蓮田市 T.K.様
改定で高さが標準で2,200mmになり、選んだカラー、屋根材のおかげで明るく素敵なカーポートが完成。

千葉県 八街市 T.K.様
車のUV対策で購入。ルーフが思ってた以上に濃いめだったので良かったです。

大阪府 高槻市 S.T.様
とても明るく凄く丈夫そうです 広くなった気もします

神奈川県 厚木市 O.T.様
まだ設置したばかりですが、シンプルな外観でアーチも緩やかなので、周囲の景観とよくマッチします。 色もプラチナステンを選んだので、重くならずにモダンな感じを維持出来ました。 家族からも良いデザインだといわれています。

栃木県 芳賀郡茂木町 T.T.様
担当者様及び施工業者様の対応がとてもよく、スムーズに購入設置することができました。

愛媛県 松山市 Y.H.様
もう少し低い方が良かったのではとの事 サイドからの吹き込みが気になる。

静岡県 富士宮市 M.Y.様
我が家の駐車場に合うのか実際分からなかったので不安でしたが、幅、高さ、奥行きも充分あり、大変満足しています。車にキャリーラックを搭載していますが、キャンプ用品の積み込みも余裕でできそうです。

千葉県 市川市 O.T.様
後付けでセンサーライトなどを取り付けられるようになっていれば良かった
関連するお客様の声

5つ星のうち5
群馬県K.H. 様回答日:2025年4月
自宅の庭にベンチやテーブルを作りBBQなどを行っていた。 木製のためテントを建てて雨除けにしていたが風に弱くたびたび壊れた。 ガゼボを建てようかと思っていたが高額なのでカーポートで代用しようと決定した。 工事請負業者が下見に来て、上記の事を説明したら、屋根の高さなどアドバイスしてくれた。 やっつけ仕事ではなく、顧客のために考えてくれた事が嬉しかった。

5つ星のうち4
佐賀県N.T. 様回答日:2025年1月
外構を調べていてYouTubeを良く見ていましたがお勧めがエクスショップだったので3台用で見積りを取ってみて希望に近かったので決めましたが、実際に決定した見積りは設置業者さんお勧めの組合せが良かったので変更して決定しました。設置してから霜が降りる寒い日や雨の日の乗り降りが大変楽になり設置して良かったです。

5つ星のうち5
愛知県I.T. 様回答日:2025年1月
カーポート設置を検討しておりインターネットにて検索した結果、御社が価格及び業界シェアが高いため信頼できると判断し御社のみお声がけ致しました。予定通り迅速に設置頂き希望通りに出来上がったため非常に満足しております。今後とも是非よろしくお願いいたします。

5つ星のうち5
茨城県C.M. 様回答日:2024年9月
カーポートが無いときは真夏の日には車室内の温度が高くなってしまい、ある程度車の温度を下げてから運行が可能だったが、カーポートの施工後車の室内温度が下がってすぐ運行が出来ました。フェンスも施工後外でコーヒーを飲んだり個人プライベート活動にメリットを得られてグットライフになりました。

5つ星のうち4
広島県W.T. 様回答日:2024年4月
見積をしていただいた中で一番安く、また見積時も丁寧に見てもらい、道路に出てしまうところを調整しないといけないことと、一番自分たちが求めていた幅のものを見積もって頂き安心して購入出来ました。雨に濡れることなく車へ出入りできるので嬉しいです。ありがとうございました。

5つ星のうち5
愛知県A.M. 様回答日:2025年9月
ずっとカーポートが付けたかったけど、どうしてもいるものではなかったので後回しになっていた。年々猛暑が続いていた事がきっかけです。暑い日に乗った最初の車内の温度が低く感じられて、つけて良かったと思った。小雨の時の車の汚れが防げるといいなと思っています。

5つ星のうち5
京都府N.T. 様回答日:2025年9月
今回、人工芝の設置とカーポートの施工をお願いしました。人工芝は子供たちの評判も良く、近日にプールをするのを楽しみにしております。また、カーポートも想像以上の出来で、ご近所さんにもお褒めの言葉を頂きました。施工業者様もとても親切丁寧な方で、ぜひまたお願いしたいなと思います。

5つ星のうち5
神奈川県H.Y. 様回答日:2025年8月
1、新車購入をきっかけに、車を綺麗に保ちたかった。2、冬季の朝のガラスの霜降り、夏の昼間に車に乗る時の暑さを回避したかった。3、想定していた施工後のイメージを超えて非常に満足しています。ダウンライトをつけたので、夜はショールームのように車が照らされて、高級感があります。夜の駐車は少し近所では浮いていますが、慣れれば何ら問題ないです。
関連するブログ記事










関連するよくあるご質問
カーポートの設置と一緒に土間コンクリートを打設できますか?
【商品カテゴリ >カーポート】(ご質問No.707)
既存のカーポート屋根材の張り替えの依頼はできますか?
【商品カテゴリ >カーポート】(ご質問No.21)
以前購入したカーポートの部品のみを追加で購入する事は可能ですか?
【商品カテゴリ >カーポート】(ご質問No.48)
ワイドタイプのカーポートですが、横幅の切り詰めは可能ですか?
【商品カテゴリ >カーポート】(ご質問No.69)
カーポートって何ですか?
【商品カテゴリ >カーポート】(ご質問No.28910)
既存のカーポートの柱の高さを桁上げする事は可能ですか?
【商品カテゴリ >カーポート】(ご質問No.43)
既存のカーポートをいったん解体し、再度組み立てることは可能ですか?
【商品カテゴリ >カーポート】(ご質問No.46)
四国化成のFリードカーポート収納庫付きタイプは取り扱ってますか?
【商品カテゴリ >カーポート】(ご質問No.74)
既存カーポートの支柱を流用して、増設、縦列2台用のカーポートを設置することは可能ですか?
【商品カテゴリ >カーポート】(ご質問No.84)
四国化成のマイポートneoの取り扱いはありますか?
【商品カテゴリ >カーポート】(ご質問No.88)


















