バイク・自転車を雨風から保護
お家の収納能力をアップ
ガレージの保全・防犯にカーポートと合わせて
お庭に機能的スペースを作り出します
防犯、お家のドレスアップはこれで決まり
ガレージ商品とコンビで高級感を演出
各取扱メーカーの会社名、ロゴ及び商品名等は各社の商標または登録商標です。
| 日 | 月 | 火 | 水 | 木 | 金 | 土 |
|---|---|---|---|---|---|---|
| 1 | 2 | 3 | 4 | 5 | 6 | |
| 7 | 8 | 9 | 10 | 11 | 12 | 13 |
| 14 | 15 | 16 | 17 | 18 | 19 | 20 |
| 21 | 22 | 23 | 24 | 25 | 26 | 27 |
| 28 | 29 | 30 | 31 |
| 日 | 月 | 火 | 水 | 木 | 金 | 土 |
|---|---|---|---|---|---|---|
| 1 | 2 | 3 | ||||
| 4 | 5 | 6 | 7 | 8 | 9 | 10 |
| 11 | 12 | 13 | 14 | 15 | 16 | 17 |
| 18 | 19 | 20 | 21 | 22 | 23 | 24 |
| 25 | 26 | 27 | 28 | 29 | 30 | 31 |
…休業日(現場調査・工事は一部対応)
![]()
【受付時間】9:30 - 17:30(営業日)
![]()
【受付時間】9:30 - 17:30(営業日)
オペレーションスタッフ
エクステリアプランナー有資格者の私たちにお任せください。
ショップ責任者
神(じん)
エクステリア プランナー
有資格者61名
1/3
木附
枡田
重富
吉澤
吉野
小東
池本
山田
佐藤
白崎
新西
伊野
次田
南
西山
小林
阿重田
梨田
長谷川
藤田
村上
平戸
植松
内田
久田
中島
長石
水口
榮
山崎
清水
室谷
安田
水谷
小野
酒井
一氏
神吉
日下部
山中
深田
田中
水田
西田
岡本
丸山
北
坂本
中嶋
岩野
伊藤
上中
高山
原
犬井
佐伯
谷川
塚田
松本
小林
森下
上内
島田
森
梅田
松山
山本
小西
倉地
山根
中原
河野
村上
土井
岩破
南
井上
三ツ股
小田
依藤
永禮
林
加藤
石藤
駒井
末吉
山本
芦野
樽井
野上
岡田
木村
池田
西村
藤澤
達川
奥原
那須
1/3
今週のPick Upページ
![]()
ご利用頂いたお客様の口コミ・レビューを「お客様の声」として掲載しております。
全てのご感想を掲載しておりますので、エクスショップの評判としてご参考ください。
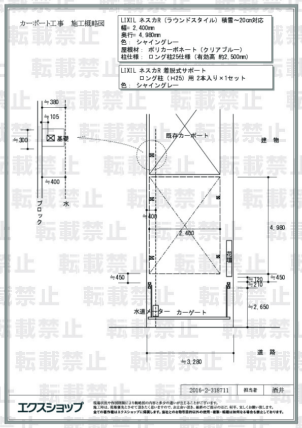
正式お見積りと一緒に提出させて頂いております「工事概略図面」もご覧頂けます。
商品や設置場所のご検討にお役立てください。
(写真No:31871132)
(カーポート)
| カラー | シャイングレー |
|---|---|
| サイズ | 幅 2,400mm 奥行 4,980mm |
| 屋根高等 | ロング柱25仕様(有効高 約2,500mm) |
| 屋根材等 | ポリカーボネート(クリアブルー) |
| 工事方法 | 地域密着あんしん施工 |
以前一度お世話になっていたので、ネットでの注文でもあまり心配はしていませんでしたし、設置して頂いた方もわかりやすく説明してくださり、今回もとてもよい買い物が出来ました。また次回何かの際にはお願いしたいと思います。
前回の施工にご満足頂き、この度は、ネスカR (ラウンドスタイル)の施工をご依頼頂きましたこと、スタッフ一同大変嬉しく存じます。お顔を合わすことの出来ない遠方のお客様とも、このような信頼関係を築けますことが、ネット販売の最大の魅力ではないかと感じております。雨や埃によるお車の汚れが軽減され、洗車の回数も少なくてすむのではないかと存じます。これからも、エクスショップをご利用頂いた、全てのお客様に、安心と満足をお届けすることが出来ますよう、日々精進して参りたいと存じます。またのご利用を、心よりお待ち申し上げております。
当サイトは以下のセキュリティ機能や保護認定等を備えています。安心してお申し込みください
当サイトは256ビットSSL暗号化に対応しています。入力した個人情報は暗号化して送られますので、安心してご利用ください。
当社はJADMAの正会員です。同協会は法律で位置づけられた団体で、消費者の利益保護と業界の健全な発展の為に活動しています。
こちらの工事に使用しているエクステリア
![]()
ネスカ R 1台用(ラウンドスタイル)

工事費・税込
137,800円〜
総合平均評価(星5つ評価)
4.71
商品レビュー数
1012件
ネスカ R 1台用(ラウンドスタイル)はラウンドタイプのアール屋根が特徴的な側方支柱カーポートです。本体カラーはシャイングレーを含めた全5色から、日差しからお車を守る屋根材は全6タイプ展開と種類に富む組み合わせが可能に。耐風性能は基準風速Vo=34m/s、耐積雪性能は20cm相当を対応しています。
この商品の詳細へ
無料お見積り・現場調査・ご注文もこちら
この商品のレビュー
商品レビュー1,012件

神奈川県 横須賀市 O.N.様
近所の方々からも、立派でかっこいいと言われています。

東京都 八王子市 S.N.様
とても満足しています。 ありがとうございました。

東京都 西東京市 F.N.様
大変満足しております。 思い切って、取り付けて良かったです。

奈良県 高市郡高取町 H.H.様
前回施工頂いたものがモデルチェンジしてましたが、問題なく感じてます。

愛知県 豊田市 U.R.様
商品の見た目はとても良いです、今のところ特に不満はありません。

大阪府 河内長野市 N.H.様
これまで支柱が4本あったのが2本になってすっきりです

茨城県 牛久市 T.Y.様
きれいで明るくなり近所の方も「頑丈そうね」と眺めていました。ロング柱が以外に高く強風だと吹き込みが予想以上でしたが背の高い1BOXも余裕で入りそうなので全体的に満足です。

大阪府 藤井寺市 Y.T.様
屋根材は透明色、適度に遮光され暗くありません。支柱高を有効高2500mmしたおかげで開放感があります。横殴りの雨でも濡れることはなく、支柱高を上げて良かったと思います。

大阪府 枚方市 N.T.様
まだ実際に利用していないので満足度は不明ですが、希望通りに施工していただけました。

東京都 小平市 H.T.様
屋根の色も白系の透明な屋根にしたので、昼間は明るく満足しています。

東京都 足立区 A.T.様
雨の吹き込みなどはまだ確認出来ていないが、見た目などに特に違和感なく問題なし。
関連するお客様の声

5つ星のうち5
岡山県I.M. 様回答日:2011年5月
施工前は、低価格でしかもネットでの注文ということで少し不安もありましたが、工事に来られる方はとても丁寧に説明をしてくださり、実際に工事が終わった今はものすごく満足しています。

5つ星のうち5
兵庫県M.Y. 様回答日:2016年2月
対応が、速く、現地調査来られた工務店方の対応も親切で、色々アドバイスを、いただき納得いきました。また、工事に来られた職人さんが、以前一度お世話になった方で、安心して、任せられました。基本的には、自転車置きに使うのですが、サイクルポートでは、ちいさすぎるので、カーポートにして良かったです。とても満足しています。

5つ星のうち4
兵庫県O.Y. 様回答日:2012年2月
見積もりに来てくださった方がとても感じがよく、丁寧に説明をしてくださったことが、一番よかったです。また、実際に施工していただいた方もスムーズで、あっという間に設置をしてくださりました。

5つ星のうち5
兵庫県O.Y. 様回答日:2013年7月
大変満足しております。始めてのネットでの買い物だったので不安がありましたが、説明から施工まで納得いく対応をしていただきました。

5つ星のうち4
広島県A.Y. 様回答日:2014年5月
いくら安い見積もりとはいえ高額な買い物なので仕上がりが心配でしたが、施工業者の方にも親切に説明していただき出来上がりにも満足しています。

5つ星のうち5
千葉県I.H. 様回答日:2014年5月
何度か変更があり、そのたびに見積りをお願いしました。でも担当者の方がとてもわかりやすく説明してくださり、親切に対応してくださり、安心して施工をお願いすることができました。工事当日、来てくださった業者の方も手際良くすすめてくれました。また、ご近所への対応も素晴らしかったです。出来上がったカーポートも思ってた以上に満足できるものでした。今回、エクスショップさんにお願いして本当に良かったと思いました。

5つ星のうち4
埼玉県K.R. 様回答日:2013年7月
今回初めてお願いするに至り不安はありましたがご対応頂きました方、施工業者の方々によりより良い買い物をさせて頂きました。ありがとうございます。

5つ星のうち4
愛知県K.S. 様回答日:2014年4月
ネットでの注文は初めてでしたので不安もありました。納期が遅くなるとのことで心配しましたが担当者の方の迅速、丁寧な対応に満足しております。施工工事の方の対応も親切で感謝しております。いい買い物ができました。ありがとうございました。

5つ星のうち5
滋賀県O.K. 様回答日:2012年12月
ネットでの依頼で心配していましたが、見積もりの方の対応が良く、安心して注文致しました。工事の方も丁寧な対応で満足しています。

5つ星のうち5
福島県S.K. 様回答日:2016年7月
ネットでの注文で、心配もありましたが、担当の方がマメに連絡をしてくださり、完成まで安心しておまかせできました。思った以上のいい商品で、満足です!
関連するブログ記事
関連するよくあるご質問
カーポートの設置と一緒に土間コンクリートを打設できますか?
【商品カテゴリ >カーポート】(ご質問No.707)
既存のカーポート屋根材の張り替えの依頼はできますか?
【商品カテゴリ >カーポート】(ご質問No.21)
以前購入したカーポートの部品のみを追加で購入する事は可能ですか?
【商品カテゴリ >カーポート】(ご質問No.48)
ワイドタイプのカーポートですが、横幅の切り詰めは可能ですか?
【商品カテゴリ >カーポート】(ご質問No.69)
カーポートって何ですか?
【商品カテゴリ >カーポート】(ご質問No.28910)
既存のカーポートの柱の高さを桁上げする事は可能ですか?
【商品カテゴリ >カーポート】(ご質問No.43)
既存のカーポートをいったん解体し、再度組み立てることは可能ですか?
【商品カテゴリ >カーポート】(ご質問No.46)
四国化成のFリードカーポート収納庫付きタイプは取り扱ってますか?
【商品カテゴリ >カーポート】(ご質問No.74)
既存カーポートの支柱を流用して、増設、縦列2台用のカーポートを設置することは可能ですか?
【商品カテゴリ >カーポート】(ご質問No.84)
四国化成のマイポートneoの取り扱いはありますか?
【商品カテゴリ >カーポート】(ご質問No.88)


















