バイク・自転車を雨風から保護
お家の収納能力をアップ
ガレージの保全・防犯にカーポートと合わせて
お庭に機能的スペースを作り出します
防犯、お家のドレスアップはこれで決まり
ガレージ商品とコンビで高級感を演出
各取扱メーカーの会社名、ロゴ及び商品名等は各社の商標または登録商標です。
| 日 | 月 | 火 | 水 | 木 | 金 | 土 |
|---|---|---|---|---|---|---|
| 1 | 2 | 3 | ||||
| 4 | 5 | 6 | 7 | 8 | 9 | 10 |
| 11 | 12 | 13 | 14 | 15 | 16 | 17 |
| 18 | 19 | 20 | 21 | 22 | 23 | 24 |
| 25 | 26 | 27 | 28 | 29 | 30 | 31 |
| 日 | 月 | 火 | 水 | 木 | 金 | 土 |
|---|---|---|---|---|---|---|
| 1 | 2 | 3 | 4 | 5 | 6 | 7 |
| 8 | 9 | 10 | 11 | 12 | 13 | 14 |
| 15 | 16 | 17 | 18 | 19 | 20 | 21 |
| 22 | 23 | 24 | 25 | 26 | 27 | 28 |
…休業日(現場調査・工事は一部対応)
![]()
【受付時間】9:30 - 17:30(営業日)
![]()
【受付時間】9:30 - 17:30(営業日)
オペレーションスタッフ
エクステリアプランナー有資格者の私たちにお任せください。
ショップ責任者
神(じん)
エクステリア プランナー
有資格者61名
1/3
木附
枡田
重富
吉澤
吉野
小東
池本
山田
佐藤
白崎
新西
伊野
次田
南
西山
小林
阿重田
梨田
長谷川
藤田
村上
平戸
植松
内田
久田
中島
長石
水口
榮
山崎
清水
室谷
安田
水谷
小野
酒井
一氏
神吉
日下部
山中
深田
田中
水田
西田
岡本
丸山
北
坂本
中嶋
岩野
伊藤
上中
高山
原
犬井
佐伯
谷川
塚田
松本
小林
森下
上内
島田
森
梅田
松山
山本
小西
倉地
山根
中原
河野
村上
土井
岩破
南
井上
三ツ股
小田
依藤
永禮
林
加藤
石藤
駒井
末吉
山本
芦野
樽井
野上
岡田
木村
池田
西村
藤澤
達川
奥原
那須
1/3
今週のPick Upページ
![]()
ご利用頂いたお客様の口コミ・レビューを「お客様の声」として掲載しております。
全てのご感想を掲載しておりますので、エクスショップの評判としてご参考ください。
正式お見積りと一緒に提出させて頂いております「工事概略図面」もご覧頂けます。
商品や設置場所のご検討にお役立てください。
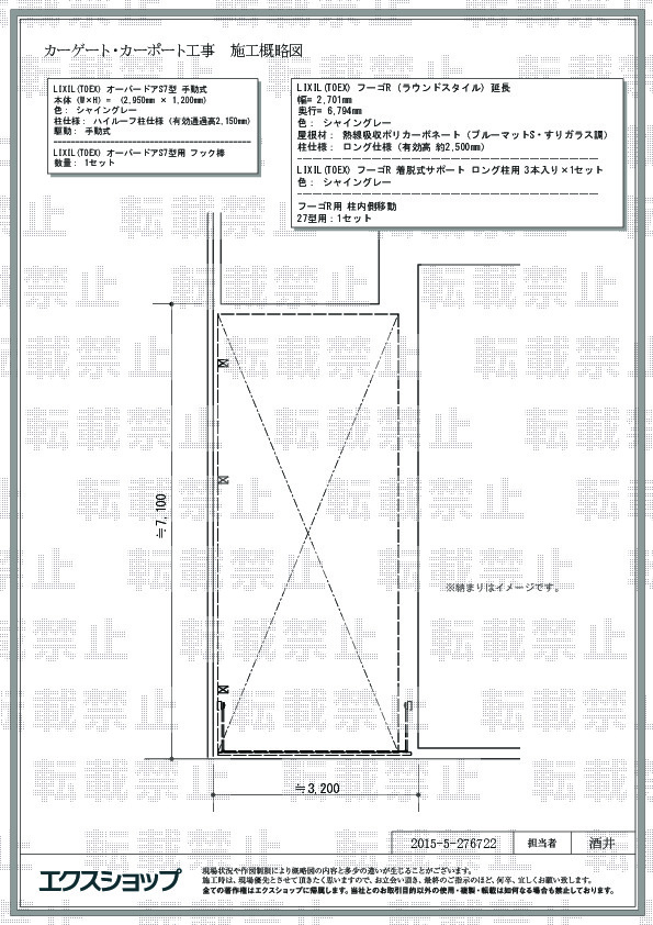
(写真No:27672225)
(カーポート)
| カラー | シャイングレー |
|---|---|
| サイズ | 幅 2,701mm 奥行 6,794mm |
| 屋根高等 | ロング仕様(有効高 約2,500mm) |
| 屋根材等 | 熱線吸収ポリカーボネート(ブルーマットS・すりガラス調) |
| 工事方法 | 地域密着あんしん施工 |
カーポートの寸法を庭の大きさ合わせたので、車や自転車が雨に濡れにくくなった点が一番です。電話での対応となりましたが、質問事項や見積もり内容変更にも直ぐに対応していただき、そのレスポンスの良さに感心いたしました。また、施工していただいた方にもいろいろとアドバイスをしていただき、丁寧な作業としっかりとした施工に満足しております。
この度はオーバードアS7型及びフーゴR (ラウンドスタイル) 延長の施工をご依頼頂き、誠に有り難うございました。駐車スペースにぴったりのカーポートが設置され、お車や自転車をしっかりお守り出来ておりますこと、私どもも大変嬉しく存じます。お洒落なパンチングパネルのカーゲートは、見た目の美しさに加えお住まいの敷地をガードする頼もしさも感じられるお仕上がりでございますね。どちらも機能性・耐久性に優れた素晴らしい商品でございますので、お気に召して頂き永くご愛用頂けますと幸いでございます。ここれからもお客様の快適なお住まいづくりのお手伝いができますよう、より一層努力を重ねて参ります。また機会がございましたら、是非弊社にご用命くださいますよう、宜しくお願い致します。
当サイトは以下のセキュリティ機能や保護認定等を備えています。安心してお申し込みください
当サイトは256ビットSSL暗号化に対応しています。入力した個人情報は暗号化して送られますので、安心してご利用ください。
当社はJADMAの正会員です。同協会は法律で位置づけられた団体で、消費者の利益保護と業界の健全な発展の為に活動しています。
こちらの工事に使用しているエクステリア
![]()
フーゴ R 1台用 延長(ラウンドスタイル)

工事費・税込
302,800円〜
総合平均評価(星5つ評価)
4.75
商品レビュー数
4件
フーゴ R 1台用 延長(ラウンドスタイル)はソフトな曲線を持つラウンドフォルムが特徴の片流しタイプのカーポートです。本体の色合いは5つから選択可能で、屋根構造材は6種類から選ぶことができます。風への耐久性は基準風速Vo=36m/s、雪への耐久性は20cm相当となっています。
この商品の詳細へ
無料お見積り・現場調査・ご注文もこちら
関連するお客様の声

5つ星のうち5
岐阜県A.H. 様回答日:2021年1月
車と自転車の駐輪場を兼ねたカーポートが欲しかった為、購入。雨で濡れて劣化する可能性が低くなった。質問事項に対しても対応が早かった。

5つ星のうち5
埼玉県Y.Y. 様回答日:2013年11月
ネットからの注文という事で少々不安はあったのですが、質問事項にもわかりやすく、そして丁寧な対応をしてくれました。実際の商品にも満足してます。

5つ星のうち4
熊本県O.K. 様回答日:2018年9月
車を購入するので、カーポートがほしかった。また、カーポートの大きさがちょうどいい大きさだったので決めた。

5つ星のうち4
愛媛県K.K. 様回答日:2012年11月
価格が安かったため少し不安がありましたが、電話やメールの対応が丁寧で安心でした。現地調査の方の対応もよく、カーポートの長さや高さの相談にものって頂き助かりました。出来上がりもきれいで満足しています。ありがとうございました。

5つ星のうち4
福岡県K.M. 様回答日:2014年9月
ありがとうごさいました。要望を沢山聞き入れて貰い、本当に助かりました(^^*)丁寧な、対応ありがとうごさいました。

5つ星のうち5
神奈川県K.N. 様回答日:2014年11月
思っていたより、迅速に対応して頂いてわからないところは、電話で相談できて、実際に見に来て頂いた方にもアドバイス頂いて安心してお任せできました。施工も丁寧にして頂き、満足しています。

5つ星のうち5
宮崎県O.K. 様回答日:2015年4月
設置したばかりですが、車が天候から守れる点を一番に期待しています。担当の方とは電話・メールでのやり取りでしたが、迅速・丁寧に対応していただき、また施工者の方も丁寧な対応をしていただき、満足しています。

5つ星のうち5
神奈川県A.O. 様回答日:2020年3月
施工の方が現場確認や当日の作業を担当され、適切なアドバイスや説明に納得しました。また、手際の良さも感心しました。

5つ星のうち4
千葉県O.Y. 様回答日:2018年5月
新築の家を購入したため、合わせてカーポートを設置した。エクスショップさんは質問事項にもすぐに対応していただき、不安なく進めることができた。

5つ星のうち5
静岡県K.M. 様回答日:2014年2月
カーポートをネット検索していたところ、こちらのエクスショップさんのHPの見易さと価格の安さで施工をお願いしました。見積もり依頼をお願いして直ぐに返事があり、とても対応が早く安心出来ました。現地調査に来ていただいた方もとても親切丁寧な対応で、施工も迅速かつ正確にやっていただいて本当に感謝しています、ありがとうございました。
関連するブログ記事










関連するよくあるご質問
カーポートの設置と一緒に土間コンクリートを打設できますか?
【商品カテゴリ >カーポート】(ご質問No.707)
既存のカーポート屋根材の張り替えの依頼はできますか?
【商品カテゴリ >カーポート】(ご質問No.21)
以前購入したカーポートの部品のみを追加で購入する事は可能ですか?
【商品カテゴリ >カーポート】(ご質問No.48)
ワイドタイプのカーポートですが、横幅の切り詰めは可能ですか?
【商品カテゴリ >カーポート】(ご質問No.69)
カーポートって何ですか?
【商品カテゴリ >カーポート】(ご質問No.28910)
既存のカーポートの柱の高さを桁上げする事は可能ですか?
【商品カテゴリ >カーポート】(ご質問No.43)
既存のカーポートをいったん解体し、再度組み立てることは可能ですか?
【商品カテゴリ >カーポート】(ご質問No.46)
四国化成のFリードカーポート収納庫付きタイプは取り扱ってますか?
【商品カテゴリ >カーポート】(ご質問No.74)
既存カーポートの支柱を流用して、増設、縦列2台用のカーポートを設置することは可能ですか?
【商品カテゴリ >カーポート】(ご質問No.84)
四国化成のマイポートneoの取り扱いはありますか?
【商品カテゴリ >カーポート】(ご質問No.88)


















