バイク・自転車を雨風から保護
お家の収納能力をアップ
ガレージの保全・防犯にカーポートと合わせて
お庭に機能的スペースを作り出します
防犯、お家のドレスアップはこれで決まり
ガレージ商品とコンビで高級感を演出
各取扱メーカーの会社名、ロゴ及び商品名等は各社の商標または登録商標です。
| 日 | 月 | 火 | 水 | 木 | 金 | 土 |
|---|---|---|---|---|---|---|
| 1 | 2 | 3 | 4 | |||
| 5 | 6 | 7 | 8 | 9 | 10 | 11 |
| 12 | 13 | 14 | 15 | 16 | 17 | 18 |
| 19 | 20 | 21 | 22 | 23 | 24 | 25 |
| 26 | 27 | 28 | 29 | 30 | 31 |
| 日 | 月 | 火 | 水 | 木 | 金 | 土 |
|---|---|---|---|---|---|---|
| 1 | ||||||
| 2 | 3 | 4 | 5 | 6 | 7 | 8 |
| 9 | 10 | 11 | 12 | 13 | 14 | 15 |
| 16 | 17 | 18 | 19 | 20 | 21 | 22 |
| 23 | 24 | 25 | 26 | 27 | 28 | 29 |
| 30 |
…休業日(現場調査・工事は一部対応)
![]()
【受付時間】9:30 - 17:30(営業日)
![]()
【受付時間】9:30 - 17:30(営業日)
オペレーションスタッフ
エクステリアプランナー有資格者の私たちにお任せください。
ショップ責任者
神(じん)
エクステリア プランナー
有資格者61名
1/3
木附
枡田
重富
吉澤
吉野
小東
池本
山田
佐藤
白崎
新西
伊野
次田
浅川
南
西山
小林
梨田
長谷川
藤田
阿重田
村上
植松
内田
久田
小野
平戸
中島
長石
水口
榮
山崎
清水
室谷
安田
水谷
酒井
神吉
日下部
山中
深田
田中
板持
西田
一氏
水田
岡本
坂本
中嶋
岩野
伊藤
上中
高山
竹本
犬井
佐伯
谷川
原
丸山
北
塚田
松本
島田
森
梅田
松山
山本
小林
倉地
山根
中原
河野
村上
土井
岩破
南
井上
三ツ股
小田
依藤
永禮
林
加藤
石藤
駒井
末吉
山本
芦野
樽井
野上
岡田
木村
池田
西村
藤澤
達川
奥原
那須
上内
森下
小西
1/3
今週のPick Upページ
![]()
ご利用頂いたお客様の口コミ・レビューを「お客様の声」として掲載しております。
全てのご感想を掲載しておりますので、エクスショップの評判としてご参考ください。
正式お見積りと一緒に提出させて頂いております「工事概略図面」もご覧頂けます。
商品や設置場所のご検討にお役立てください。
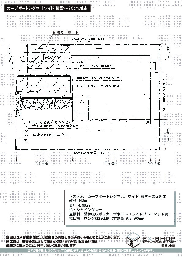
(写真No:9258397)
(カーポート)
| カラー | オータムブラウン |
|---|---|
| サイズ | 幅 5,443mm 奥行 4,980mm |
| 屋根高等 | ロング柱23仕様(有効高 約2,300mm) |
| 屋根材等 | 熱線吸収ポリカーボネート(ライトブルーマット調) |
| 工事方法 | 地域密着あんしん施工 |
メールでの質問対応はとても親切で好感がもてましたが、組み立ての職人が素人ぽくて作業がとても雑でした。雨がふると樋と反対側から雨漏りがします。
この度の、カーブポートシグマIII ワイドタイプの施工では、施工に至らないところがあり、誠に申し訳ございませんでした。心よく補修にお立ち合い頂き、お仕上がりにご満足頂けましたこと、誠に有り難く存じます。今後は、このようなことのございませぬよう、全スタッフのスキルアップに努めて参りたいと存じます。この度のご利用、誠に有難うございました。
当サイトは以下のセキュリティ機能や保護認定等を備えています。安心してお申し込みください
当サイトは256ビットSSL暗号化に対応しています。入力した個人情報は暗号化して送られますので、安心してご利用ください。
当社はJADMAの正会員です。同協会は法律で位置づけられた団体で、消費者の利益保護と業界の健全な発展の為に活動しています。
こちらの工事に使用しているエクステリア
![]()
ネスカ R 2台用(ラウンドスタイル)

工事費・税込
223,500円〜
総合平均評価(星5つ評価)
4.77
商品レビュー数
1249件
ネスカ R 2台用(ラウンドスタイル)は大きなアール仕様の屋根が特徴的な横並び2台駐車可能のカーポートです。標準柱が2200mmとなっており大半の車種に対応可能。耐風性能は基準風速Vo=40m/s、耐積雪性能は20cm相当の耐性があります。
この商品の詳細へ
無料お見積り・現場調査・ご注文もこちら
この商品のレビュー
商品レビュー1,249件

東京都 江戸川区 K.A.様
とても満足していますが屋根が雨などの吹き込み防止など一工夫あると更に大満足になります。

東京都 あきる野市 T.S.様
標準仕様で高さが220cmあり十分。カラーも希望のものが選択でき、周囲との調和が図れた。

高知県 香美市 N.N.様
カーポートの下側、内面は問題有りませんが、外側の上側の方で、シーラントがされてるのにちょっと疑問持ちました。隣の一基目のカーポートはシーラントされていないので。

佐賀県 佐賀市 S.N.様
見た目もスッキリしていて柱も思ったほど太くなく設置後の駐車もスムーズです。

和歌山県 和歌山市 I.M.様
幅=3,624mm 奥行=5,686mm 色:シャイングレー 屋根材:ポリカーボネート(クリアブラウン) 柱仕様:標準柱仕様(有効高 約2,200mm)

千葉県 市原市 I.T.様
パネルの色や支柱の色合いなども良く満足しております。

埼玉県 さいたま市 S.M.様
商品は満足です、現地確認の担当者も丁寧に説明して頂きました、施工の方も初めにいろいろと説明して頂いてからの施工でしたが、施工完了時の商品が汚れたままだったのが残念です。

東京都 八王子市 A.S.様
思ったよりも高さがあったので、2.2mの高さで 良かったです。 欲を言えば、もう少し日光を遮断してくれれば良かったのですけど。

東京都 杉並区 I.T.様
前回施工して頂いた自転車置き場の時と同様に、非常に満足です。 ネスカは、柱が多少高いので仕上り全体の感じが良いように思います。

埼玉県 北本市 K.Y.様
車2台が余裕に入り、強風でも揺ら足りしないので、重宝しています。

埼玉県 川口市 O.K.様
暑くなってきたのもあり、カーポートがあると直射日光を遮れるし、梅雨の時期を前にして設置できて満足している。

兵庫県 宍粟市 F.M.様
高さもあり、フェンスともマッチしていて、良いと思います。

福岡県 北九州市 I.Y.様
家の雰囲気に合ってて、友人からも高評価です!

福岡県 宗像市 U.F.様
黒を基調とした外観で高級感もあり凄く満足しています。

岡山県 赤磐市 M.Y.様
ガゼボを建てるつもりでしたがカーポートにしました。 カーポートにしたら解放感もありとても良かったです。 現在はウッドデッキを工事中です。
関連するお客様の声

5つ星のうち5
東京都S.S. 様回答日:2015年10月
以前からの計画でセカンドカー購入がきっかけです。

5つ星のうち5
埼玉県I.R. 様回答日:2015年10月
雨の日でもクルマいじりができるようになりました。工事は1.5日予定でしたが、3人であっという間に1日で出来てしまいました。コンクリ固まるまでの時間とかなくて大丈夫?と少し思いましたが、予定より早かったので助かりました。

5つ星のうち5
栃木県S.T. 様回答日:2015年9月
ネット販売という不安はありましたが、インターネットならではの、様々な工事事例や商品を見れる事がメリットだと感じました。また、メールでの対応が迅速で丁寧だった事が安心感につながりました。

5つ星のうち5
高知県H.E. 様回答日:2015年9月
対応が早くて、値段も安いので、今後また利用する場合はまたよろしくお願いします。

5つ星のうち5
愛知県N.C. 様回答日:2015年8月
丁寧かつ迅速な対応に感謝しております。工事日程などこちらの都合に対して最大限動いて頂きました。工事自体もこちらが思っていた以上にスピーディーでした。もちろんとてもきれいです。カーポートがついたので、雨の日の車の乗り降りがものすごく便利になりました。

5つ星のうち5
愛知県A.M. 様回答日:2025年9月
ずっとカーポートが付けたかったけど、どうしてもいるものではなかったので後回しになっていた。年々猛暑が続いていた事がきっかけです。暑い日に乗った最初の車内の温度が低く感じられて、つけて良かったと思った。小雨の時の車の汚れが防げるといいなと思っています。

5つ星のうち5
岡山県A.M. 様回答日:2025年4月
ネットのCMでエクスショップさんを知り、地元に施工店が有るとのことで現地調査に来ていただきました。見積もりから施工まで約2週間で工事完了となりました。施工店の方はとても親切丁寧で、また他の外構が必要になればお願い出来ればと思います。カーポート本体もとても丈夫で満足いくものでした。

5つ星のうち5
愛知県I.T. 様回答日:2025年4月
元々カーポートは冬の車のガラス凍結や鳥のフンを避ける為に欲しかったですが、赤ちゃんが産まれたきっかけで、車への乗せ下ろしの時に雨が当たらない様にする為に、買う踏ん切りがつきました。また、屋外に収納が無く、外で使うものも家の中に仕舞っていたので、物置も合わせて購入しました。最近は日中車に乗ると暑くなってきましたが、早速車内が暑くなってなく、恩恵を感じています。施工についても、入念に下見していただき、カーポートの柱が建てれる位置をしっかり見つけて、最適な商品を選んでいただきました。今までも2件の業者さんに見積もってもらったのですが、水道管が地中を通っているので建てれるか心配していたけれど、大丈夫です大丈夫ですと言われるばかりでした。今回下見していただいた時に建てれないと知って、案の定と思いました。エクスショップさんにお任せして良かったです!
関連するブログ記事
関連するよくあるご質問
カーポートの設置と一緒に土間コンクリートを打設できますか?
【商品カテゴリ >カーポート】(ご質問No.707)
既存のカーポート屋根材の張り替えの依頼はできますか?
【商品カテゴリ >カーポート】(ご質問No.21)
以前購入したカーポートの部品のみを追加で購入する事は可能ですか?
【商品カテゴリ >カーポート】(ご質問No.48)
ワイドタイプのカーポートですが、横幅の切り詰めは可能ですか?
【商品カテゴリ >カーポート】(ご質問No.69)
カーポートって何ですか?
【商品カテゴリ >カーポート】(ご質問No.28910)
既存のカーポートの柱の高さを桁上げする事は可能ですか?
【商品カテゴリ >カーポート】(ご質問No.43)
既存のカーポートをいったん解体し、再度組み立てることは可能ですか?
【商品カテゴリ >カーポート】(ご質問No.46)
四国化成のFリードカーポート収納庫付きタイプは取り扱ってますか?
【商品カテゴリ >カーポート】(ご質問No.74)
既存カーポートの支柱を流用して、増設、縦列2台用のカーポートを設置することは可能ですか?
【商品カテゴリ >カーポート】(ご質問No.84)
四国化成のマイポートneoの取り扱いはありますか?
【商品カテゴリ >カーポート】(ご質問No.88)


















