バイク・自転車を雨風から保護
お家の収納能力をアップ
ガレージの保全・防犯にカーポートと合わせて
お庭に機能的スペースを作り出します
防犯、お家のドレスアップはこれで決まり
ガレージ商品とコンビで高級感を演出
各取扱メーカーの会社名、ロゴ及び商品名等は各社の商標または登録商標です。
| 日 | 月 | 火 | 水 | 木 | 金 | 土 |
|---|---|---|---|---|---|---|
| 1 | 2 | 3 | 4 | 5 | 6 | |
| 7 | 8 | 9 | 10 | 11 | 12 | 13 |
| 14 | 15 | 16 | 17 | 18 | 19 | 20 |
| 21 | 22 | 23 | 24 | 25 | 26 | 27 |
| 28 | 29 | 30 | 31 |
| 日 | 月 | 火 | 水 | 木 | 金 | 土 |
|---|---|---|---|---|---|---|
| 1 | 2 | 3 | ||||
| 4 | 5 | 6 | 7 | 8 | 9 | 10 |
| 11 | 12 | 13 | 14 | 15 | 16 | 17 |
| 18 | 19 | 20 | 21 | 22 | 23 | 24 |
| 25 | 26 | 27 | 28 | 29 | 30 | 31 |
…休業日(現場調査・工事は一部対応)
![]()
【受付時間】9:30 - 17:30(営業日)
![]()
【受付時間】9:30 - 17:30(営業日)
オペレーションスタッフ
エクステリアプランナー有資格者の私たちにお任せください。
ショップ責任者
神(じん)
エクステリア プランナー
有資格者61名
1/3
木附
枡田
重富
吉澤
吉野
小東
池本
山田
佐藤
白崎
新西
伊野
次田
浅川
南
西山
小林
梨田
長谷川
藤田
阿重田
村上
植松
内田
久田
小野
平戸
中島
長石
水口
榮
山崎
清水
室谷
安田
水谷
酒井
神吉
日下部
山中
深田
田中
水田
西田
一氏
岡本
北
坂本
中嶋
岩野
伊藤
上中
高山
竹本
犬井
佐伯
谷川
原
丸山
塚田
松本
上内
島田
森
梅田
松山
山本
小林
倉地
山根
中原
河野
村上
土井
岩破
南
井上
三ツ股
小田
依藤
永禮
林
加藤
石藤
駒井
末吉
山本
芦野
樽井
野上
岡田
木村
池田
西村
藤澤
達川
奥原
那須
小西
森下
1/3
今週のPick Upページ
![]()
ご利用頂いたお客様の口コミ・レビューを「お客様の声」として掲載しております。
全てのご感想を掲載しておりますので、エクスショップの評判としてご参考ください。
正式お見積りと一緒に提出させて頂いております「工事概略図面」もご覧頂けます。
商品や設置場所のご検討にお役立てください。
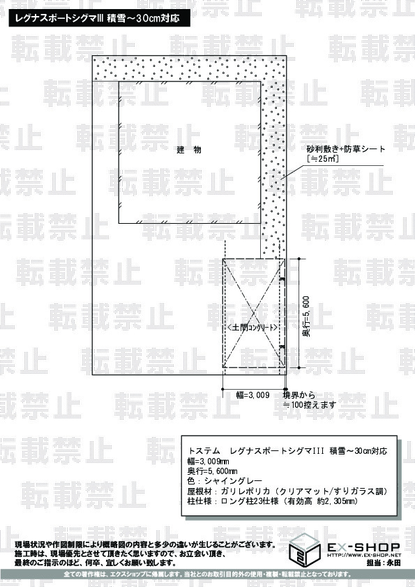
(写真No:7072371)
(カーポート)
| カラー | シャイングレー |
|---|---|
| サイズ | 幅 3,009mm 奥行 5,600mm |
| 屋根高等 | ロング柱23仕様(有効高 約2,305mm) |
| 屋根材等 | ガリレポリカ(クリアマット/すりガラス調) |
| 工事方法 | 地域密着あんしん施工 |
メールでのやりとりが中心でしたが、特に支障はありませんでした。できれば、土日もメール返信いただけるとありがたかったです。事前の現場調査でも、当方の予定に合わせていただき、迅速に対応いただけました。工事についても、丁寧に応対していただけました。
この度は、レグナスポートシグマIIIの施工をご依頼頂きまして、誠に有難うございます。顔のみえないネット販売にはご不安がおありだったかと存じますが、弊社対応へお褒めのお言葉をいただき、光栄でございます。休日の対応につきましては、お客様よりご要望を頂いておりますので、社内でも検討して参りたいと存じます。シャイングレーのフレームと、ガリレポリカ(クリアマット/すりガラス調)の屋根材のカーポートは、とても明るく、お洒落でございますね。今後もより良いシステムを構築しお客様にお喜び頂けるよう努めて参りますので、また機会がございましたらぜひ、弊社をご用命頂けますよう、宜しくお願い致します。
当サイトは以下のセキュリティ機能や保護認定等を備えています。安心してお申し込みください
当サイトは256ビットSSL暗号化に対応しています。入力した個人情報は暗号化して送られますので、安心してご利用ください。
当社はJADMAの正会員です。同協会は法律で位置づけられた団体で、消費者の利益保護と業界の健全な発展の為に活動しています。
こちらの工事に使用しているエクステリア
![]()
フーゴ R 1台用(ラウンドスタイル)

工事費・税込
221,200円〜
総合平均評価(星5つ評価)
4.64
商品レビュー数
55件
フーゴ R 1台用(ラウンドスタイル)はアール型の屋根デザインを特徴とする1台用カーポートです。本体のカラーはシャイングレーとその他4色の全5色仕様です。また、屋根材は全光線透過率の異なる6種類からお選びいただけます。耐風性能は基準風速Vo=36m/s、耐積雪性能は20cmまで対応しています。
この商品の詳細へ
無料お見積り・現場調査・ご注文もこちら
この商品のレビュー
商品レビュー55件

千葉県 八街市 Y.N.様
デザインがスッキリしており、とても気に入っています。 屋根の長さも十分で、軽自動車の他、自転車もカバーできます。

神奈川県 横浜市 I.K.様
熱線吸収タイプのカーポートとのことで、日差しの軽減を実感しています。

神奈川県 横浜市 N.A.様
商品はこちらで選定していたので、問題有ありませんでした。

神奈川県 海老名市 K.T.様
デザインもシンプルで、普通の建売には外観も価格も相応にマッチして良いと思います。

千葉県 白井市 U.K.様
あいにく工事2日目に雨が降ったので、翌日に最終仕上げを行い、都合3日で完了しました。隣の敷地と隣接していたので、施工位置の微細な変更、オプション工事についても事前説明通りで行き届いていました。ひとまわり大きくして正解で、オートバイがぬれずに楽々駐車できます。雨具の装着もやりやすそうです。

群馬県 前橋市 U.Y.様
受注生産品として品の良い出来栄えに満足しています。特に真夏の太陽熱を和らげる効果を体験させて頂き良かったです。

埼玉県 春日部市 G.T.様
かなり満足です、たまに強風が吹き付ける場所ですが、かなり丈夫そうなので安心です、家族からの評判も良いです。

神奈川県 綾瀬市 N.K.様
デザインと価格のバランスが良いと思います。

福岡県 糟屋郡志免町 T.Y.様
カーポートは自分があれこれ調べて決めるという事はなく、業者に一任していた。大まかにネットで写真などは見ていたが。しかし、そこに問題があり、びっくりするほど背の高いカーポートが設置された。将来購入しようと考えていた車より遥かに高いカーポートの高さであり、そこをショップに相談して高さ、位置の変更をしてもらった。その事でとても安定感のある素敵でしっかりしたカーポートとなり、家族も大満足です。

神奈川県 秦野市 S.K.様
とても良いと思いますが、まだ風雪にあっていないので、星一つ減らしました。

鹿児島県 鹿児島市 A.M.様
全体はシルバーで支柱もしっかりしており、屋根部分のポリカーボネイトも白色のスリガラス様で明るい印象を受けました。耐久性に関しては今後使用していく中で判断していきたいと思います。

神奈川県 小田原市 O.N.様
フェンスの色と同色で、風景にマッチしている。

福岡県 福岡市 K.T.様
カラーは白を選択しました。家の外壁と合わせました。これからの季節に効果を期待します。

長野県 北佐久郡軽井沢町 G.L.様
今のところは満足をしいますが、これからしばらく使用しないと決定的な事は言えません。また、何かあった時の修理など、アフターサービスがどうなるかも現在では評価できませんので星を一つ減らしました。

宮城県 仙台市 W.K.様
従前に設置したエクステリアとベストマッチ、大変気に入っている。

東京都 武蔵野市 T.H.様
自分が思っていた、クチコミ以上の出来栄えと、作業してくださった方々の対応がとても良かったです。凄く家にマッチして、綺麗になりました。ありがとうございました。

東京都 中野区 K.M.様
ラウンドの屋根が美しく、遮光の性能も高いよう。一番短いタイプにしたのですが、長いものにしておけば車だけでなく自転車も置けたと反省しています。

大阪府 交野市 N.T.様
以前のものが台風で傾いたための取替えでしたが、柱など全体的に以前のものよりしっかりしていて、カタログ通り風雪に強そうな感じです。

埼玉県 さいたま市 A.T.様
既設置済みの開閉式ゲートや支柱の関係から要望したカーポートよりランクが上がり、また支柱位置調整などの追加工事で、当初想定していた値段よりも上がってしまったが、商品的には満足している。
関連するお客様の声

5つ星のうち5
千葉県U.K. 様回答日:2022年9月
下見を行って確認してから正式見積もり→工事日程調整→施工という流れでとてもわかりやすかったです。工事日開始もたまたまだと思いますが、思ったよりも早くて助かりました。下見打ち合わせの時に、選んだ商品が希望サイズより小さ目であることがわかり、一回り大きめタイプに変更しました。再見積もりを行い、納得できる価格でしたので、予定通り工事を行いました。

5つ星のうち5
福岡県T.Y. 様回答日:2021年7月
我が家の駐車場には垣根があり、その為カーポートを作ってなかった。落ち葉や定期的な垣根の剪定が大変だった為、今回垣根を全て伐採してカーポートとフェンスを設置してもらった。結構成長した垣根の為駐車場が狭く感じられていたが、新しい駐車場は広く感じ、明るいし落ち葉もない為工事して良かったと感じている。

5つ星のうち4
神奈川県N.K. 様回答日:2021年7月
購入のきっかけ→価格面で他のショップよりも安かった便利・快適になった点→カーポートにより自転車、バイクがより良い状態で保管できるようになった。ドライテックを敷いたことにより雑草の処理がなくなった。土を踏まずに済み、敷地内が歩きやすくなった。エクスショップの感想→価格が安いのは良いと思います。施工後の写真の送付とアンケートは手間だと感じます。

5つ星のうち4
東京都Y.M. 様回答日:2017年5月
サイクルポートの設置を検討していましたが、カーポートとして利用することもあるため、現場調査担当の方に相談し、カットしたカーポートを設置して貰いました。雨に濡れなくなりすごく快適です。工事は大きな音がする作業がありましたので、前もってショップから近隣にお知らせを送付していただけるといいなと思いました。自分でお知らせしてまわるのだと限界がありました。

5つ星のうち5
神奈川県E.J. 様回答日:2016年11月
コンクリートは自分でやろうと諦めていましたが、現場の方の匠で丁寧な仕事振りを見て、プロに任せて良かったと、本当に感じました。営業の方もいい意味で押しが強く、 最後の一押しも絶妙だったことと、連絡が早く丁寧だったことも業者選定の決め手になりました。

5つ星のうち5
愛知県A.M. 様回答日:2025年9月
ずっとカーポートが付けたかったけど、どうしてもいるものではなかったので後回しになっていた。年々猛暑が続いていた事がきっかけです。暑い日に乗った最初の車内の温度が低く感じられて、つけて良かったと思った。小雨の時の車の汚れが防げるといいなと思っています。

5つ星のうち5
静岡県G.M. 様回答日:2025年4月
昨年購入した車両は高さが2,250mmあり構造的にルーフには乗れず、洗車がとても大変で苦労していました。現在3連のカーポートはありますが高さが2,400mmの所があり納まりません。高さがクリアーできるカーポートを探した所エクスショップに辿り着きました。価格、保証等説明を聞き、クチコミにも後押しされ決めさせて頂きました。現地調査も準則にして頂き設置も近くの業者様により、2日で完了しました。設置後雨が降りましたが、車両が濡れないため雨垂れ等無くとても満足しております。また機会がありましたらその際は是非お願いしたいと思います。大変有り難う御座いました。

5つ星のうち5
長野県N.Y. 様回答日:2025年4月
友人の話を聞いて購入を考えました。初めてのマイホームということもあり、また積雪も多い地域であったことから、カーポートをつけたいと考えていました。今回購入したことで車に積もった雪を降ろすことなく快適に乗車できそうなので大変助かります。購入してよかったです。ありがとうございました。
関連するブログ記事
関連するよくあるご質問
カーポートの設置と一緒に土間コンクリートを打設できますか?
【商品カテゴリ >カーポート】(ご質問No.707)
既存のカーポート屋根材の張り替えの依頼はできますか?
【商品カテゴリ >カーポート】(ご質問No.21)
以前購入したカーポートの部品のみを追加で購入する事は可能ですか?
【商品カテゴリ >カーポート】(ご質問No.48)
ワイドタイプのカーポートですが、横幅の切り詰めは可能ですか?
【商品カテゴリ >カーポート】(ご質問No.69)
カーポートって何ですか?
【商品カテゴリ >カーポート】(ご質問No.28910)
既存のカーポートの柱の高さを桁上げする事は可能ですか?
【商品カテゴリ >カーポート】(ご質問No.43)
既存のカーポートをいったん解体し、再度組み立てることは可能ですか?
【商品カテゴリ >カーポート】(ご質問No.46)
四国化成のFリードカーポート収納庫付きタイプは取り扱ってますか?
【商品カテゴリ >カーポート】(ご質問No.74)
既存カーポートの支柱を流用して、増設、縦列2台用のカーポートを設置することは可能ですか?
【商品カテゴリ >カーポート】(ご質問No.84)
四国化成のマイポートneoの取り扱いはありますか?
【商品カテゴリ >カーポート】(ご質問No.88)


















