バイク・自転車を雨風から保護
お家の収納能力をアップ
ガレージの保全・防犯にカーポートと合わせて
お庭に機能的スペースを作り出します
防犯、お家のドレスアップはこれで決まり
ガレージ商品とコンビで高級感を演出
各取扱メーカーの会社名、ロゴ及び商品名等は各社の商標または登録商標です。
| 日 | 月 | 火 | 水 | 木 | 金 | 土 |
|---|---|---|---|---|---|---|
| 1 | 2 | 3 | 4 | 5 | 6 | |
| 7 | 8 | 9 | 10 | 11 | 12 | 13 |
| 14 | 15 | 16 | 17 | 18 | 19 | 20 |
| 21 | 22 | 23 | 24 | 25 | 26 | 27 |
| 28 | 29 | 30 | 31 |
| 日 | 月 | 火 | 水 | 木 | 金 | 土 |
|---|---|---|---|---|---|---|
| 1 | 2 | 3 | ||||
| 4 | 5 | 6 | 7 | 8 | 9 | 10 |
| 11 | 12 | 13 | 14 | 15 | 16 | 17 |
| 18 | 19 | 20 | 21 | 22 | 23 | 24 |
| 25 | 26 | 27 | 28 | 29 | 30 | 31 |
…休業日(現場調査・工事は一部対応)
![]()
【受付時間】9:30 - 17:30(営業日)
![]()
【受付時間】9:30 - 17:30(営業日)
オペレーションスタッフ
エクステリアプランナー有資格者の私たちにお任せください。
ショップ責任者
神(じん)
エクステリア プランナー
有資格者61名
1/3
木附
枡田
重富
吉澤
吉野
小東
池本
山田
佐藤
白崎
新西
伊野
次田
浅川
南
西山
小林
梨田
長谷川
藤田
阿重田
村上
植松
内田
久田
小野
平戸
中島
長石
水口
榮
山崎
清水
室谷
安田
水谷
酒井
神吉
日下部
山中
深田
田中
水田
西田
一氏
岡本
北
坂本
中嶋
岩野
伊藤
上中
高山
竹本
犬井
佐伯
谷川
原
丸山
塚田
松本
上内
島田
森
梅田
松山
山本
小林
倉地
山根
中原
河野
村上
土井
岩破
南
井上
三ツ股
小田
依藤
永禮
林
加藤
石藤
駒井
末吉
山本
芦野
樽井
野上
岡田
木村
池田
西村
藤澤
達川
奥原
那須
小西
森下
1/3
今週のPick Upページ
![]()
ご利用頂いたお客様の口コミ・レビューを「お客様の声」として掲載しております。
全てのご感想を掲載しておりますので、エクスショップの評判としてご参考ください。
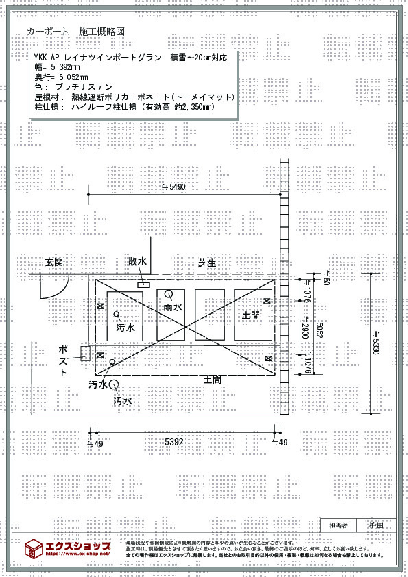
正式お見積りと一緒に提出させて頂いております「工事概略図面」もご覧頂けます。
商品や設置場所のご検討にお役立てください。
(写真No:18928411)
(カーポート)
| カラー | プラチナステン |
|---|---|
| サイズ | 幅 5,392mm 奥行 5,052mm |
| 屋根高等 | ハイルーフ柱仕様(有効高 約2,350mm) |
| 屋根材等 | 熱線遮断ポリカーボネート(トーメイマット) |
| 工事方法 | 地域密着あんしん施工 |
お見積もりの対応と現場での立会いなど迅速かつ正確な対応でした。共働きなので、土日のみの施工ですが、無理を聞いてくれました。
この度は、レイナツインポートグランの施工をご依頼頂きまして、誠に有り難うございます。アーチ状のカーポートが、大切なお車を包み込み、安心感のあるお仕上がりでございますね。お客様のお住まいを、より素敵にするお手伝いが出来ます事は、私どもにとりましても何よりの喜びでございます。これからも、お客様の笑顔の為に、日々努力して参りたいと存じますので、また、機会がございましたら、是非エクスショップをご利用頂けますよう、宜しくお願い致します。
当サイトは以下のセキュリティ機能や保護認定等を備えています。安心してお申し込みください
当サイトは256ビットSSL暗号化に対応しています。入力した個人情報は暗号化して送られますので、安心してご利用ください。
当社はJADMAの正会員です。同協会は法律で位置づけられた団体で、消費者の利益保護と業界の健全な発展の為に活動しています。
こちらの工事に使用しているエクステリア
![]()
アリュース 600タイプ 2台用

工事費・税込
215,900円〜
総合平均評価(星5つ評価)
4.85
商品レビュー数
110件
アリュース 600タイプ 2台用は継ぎ目のない大きなアール屋根が特徴的な両側支持タイプの2台用カーポートです。柱・梁には水での急速冷却により高強度化(T6処理)したアルミニウム合金を用いており、基準風速Vo=40m/s・耐積雪性能20cmを確保しています。
この商品の詳細へ
無料お見積り・現場調査・ご注文もこちら
この商品のレビュー
商品レビュー110件

茨城県 古河市 S.M.様
色々アドバイスもいただき良い買い物が出来たと思います。

静岡県 浜松市 A.T.様
急遽ハツリ工事が発生しましたが、職人さんも快く施工してくれました。 仕上がりも綺麗で満足してます。

福岡県 久留米市 R.K.様
仕様は2台用ですが、2台駐車は難しいと思います。私は1台で使用するので、ゆっくり停めれて満足です。

群馬県 伊勢崎市 K.H.様
外観はとても良い。 荒天の時を迎えないとそれ以上は言えない。

岡山県 和気郡和気町 N.K.様
大変満足です。 土地が広いのでもうワンサイズ大きい物でもよかったかなと思います。

埼玉県 蓮田市 T.K.様
改定で高さが標準で2,200mmになり、選んだカラー、屋根材のおかげで明るく素敵なカーポートが完成。

千葉県 八街市 T.K.様
車のUV対策で購入。ルーフが思ってた以上に濃いめだったので良かったです。

大阪府 高槻市 S.T.様
とても明るく凄く丈夫そうです 広くなった気もします

神奈川県 厚木市 O.T.様
まだ設置したばかりですが、シンプルな外観でアーチも緩やかなので、周囲の景観とよくマッチします。 色もプラチナステンを選んだので、重くならずにモダンな感じを維持出来ました。 家族からも良いデザインだといわれています。

栃木県 芳賀郡茂木町 T.T.様
担当者様及び施工業者様の対応がとてもよく、スムーズに購入設置することができました。

愛媛県 松山市 Y.H.様
もう少し低い方が良かったのではとの事 サイドからの吹き込みが気になる。

静岡県 富士宮市 M.Y.様
我が家の駐車場に合うのか実際分からなかったので不安でしたが、幅、高さ、奥行きも充分あり、大変満足しています。車にキャリーラックを搭載していますが、キャンプ用品の積み込みも余裕でできそうです。

千葉県 市川市 O.T.様
後付けでセンサーライトなどを取り付けられるようになっていれば良かった

埼玉県 春日部市 K.K.様
カーポートをつけ圧迫感が出てしまうかと思いましたが、屋根部分が明るいため逆に広く感じるほどでした。
関連するお客様の声

5つ星のうち5
宮崎県Y.K. 様回答日:2016年8月
迅速かつ正確な対応をしていただいたことに感謝いたします。また、何かありましたらこちらをぜひ利用させていただきたいと思いました。

5つ星のうち4
愛知県M.Y. 様回答日:2014年11月
いつでも丁寧な対応をしてますので満足してますが、土日もし対応できればもっとスムーズに進めると思います。

5つ星のうち4
愛知県I.M. 様回答日:2011年3月
現場調査を土日でお願いしたが、YKK商品は土日での営業がなく休暇をとって平日に対応せざるを得なかった。商品紹介のなかで土日が対応できるかどうか示していただきたい。

5つ星のうち4
神奈川県H.K. 様回答日:2011年6月
メールのやりとりでしたが、対応が早く大変よかったと思います。しかし、土日での対応がしていただけなかったのが、残念です。現場での業者さんは、相談にものってくれて大変に助かりました。

5つ星のうち5
群馬県S.K. 様回答日:2012年7月
対応が、早かったのできちんとしている会社だと思い決めました。施工業者の方の印象もよかったし土日での、施工も引き受けてくれたので。

5つ星のうち4
愛媛県T.K. 様回答日:2016年9月
営業の方の迅速なご対応と、こちらからの無理なお願いにも親切かつ真摯にご対応いただけましたので、満足しております。

5つ星のうち5
愛知県K.K. 様回答日:2013年1月
電話での対応がとてもよく、結構無理なお願いにもとても丁寧な対応をとってもらいとても感謝してます。担当の方、ありがとうございます。

5つ星のうち5
千葉県I.N. 様回答日:2011年8月
仕事の関係で土日しか立ち合いが出来ないため、施工は土日で、出来るだけ早くお願いします。と希望した所、土日のしかもお盆中にもかかわらず施工をしていただきました。割増料金もありませんでした。また、業者の方も本当に感じが良く、工事も丁寧でしっかりと仕上げていただきました。ありがとうございました。

5つ星のうち5
京都府S.M. 様回答日:2016年11月
小さい子供がいるので、雨などを避けたかったのと、新車を購入するので良いきっかけでした。2人とも共働きなので、メールで対応可能でかつ対応が迅速で検討の際にも助かりました。スタッフの方の対応も丁寧で満足でした。

5つ星のうち4
東京都K.H. 様回答日:2012年4月
ネット上で、ある程度正確に見積もりが出せて、実際に現場の方に来ていただいても、追加費用などがなく、好感が持てました。
関連するブログ記事
関連するよくあるご質問
カーポートの設置と一緒に土間コンクリートを打設できますか?
【商品カテゴリ >カーポート】(ご質問No.707)
既存のカーポート屋根材の張り替えの依頼はできますか?
【商品カテゴリ >カーポート】(ご質問No.21)
以前購入したカーポートの部品のみを追加で購入する事は可能ですか?
【商品カテゴリ >カーポート】(ご質問No.48)
ワイドタイプのカーポートですが、横幅の切り詰めは可能ですか?
【商品カテゴリ >カーポート】(ご質問No.69)
カーポートって何ですか?
【商品カテゴリ >カーポート】(ご質問No.28910)
既存のカーポートの柱の高さを桁上げする事は可能ですか?
【商品カテゴリ >カーポート】(ご質問No.43)
既存のカーポートをいったん解体し、再度組み立てることは可能ですか?
【商品カテゴリ >カーポート】(ご質問No.46)
四国化成のFリードカーポート収納庫付きタイプは取り扱ってますか?
【商品カテゴリ >カーポート】(ご質問No.74)
既存カーポートの支柱を流用して、増設、縦列2台用のカーポートを設置することは可能ですか?
【商品カテゴリ >カーポート】(ご質問No.84)
四国化成のマイポートneoの取り扱いはありますか?
【商品カテゴリ >カーポート】(ご質問No.88)


















