バイク・自転車を雨風から保護
お家の収納能力をアップ
ガレージの保全・防犯にカーポートと合わせて
お庭に機能的スペースを作り出します
防犯、お家のドレスアップはこれで決まり
ガレージ商品とコンビで高級感を演出
各取扱メーカーの会社名、ロゴ及び商品名等は各社の商標または登録商標です。
| 日 | 月 | 火 | 水 | 木 | 金 | 土 |
|---|---|---|---|---|---|---|
| 1 | 2 | 3 | 4 | 5 | 6 | 7 |
| 8 | 9 | 10 | 11 | 12 | 13 | 14 |
| 15 | 16 | 17 | 18 | 19 | 20 | 21 |
| 22 | 23 | 24 | 25 | 26 | 27 | 28 |
| 日 | 月 | 火 | 水 | 木 | 金 | 土 |
|---|---|---|---|---|---|---|
| 1 | 2 | 3 | 4 | 5 | 6 | 7 |
| 8 | 9 | 10 | 11 | 12 | 13 | 14 |
| 15 | 16 | 17 | 18 | 19 | 20 | 21 |
| 22 | 23 | 24 | 25 | 26 | 27 | 28 |
| 29 | 30 | 31 |
…休業日(現場調査・工事は一部対応)
![]()
【受付時間】9:30 - 17:30(営業日)
![]()
【受付時間】9:30 - 17:30(営業日)
オペレーションスタッフ
エクステリアプランナー有資格者の私たちにお任せください。
ショップ責任者
神(じん)
エクステリア プランナー
有資格者61名
1/3
木附
枡田
重富
吉澤
吉野
小東
池本
山田
佐藤
白崎
新西
伊野
次田
南
西山
小林
阿重田
梨田
長谷川
藤田
村上
平戸
植松
内田
久田
中島
長石
水口
榮
山崎
清水
室谷
安田
水谷
小野
酒井
一氏
神吉
日下部
山中
深田
田中
水田
西田
岡本
丸山
北
坂本
中嶋
岩野
伊藤
上中
高山
原
犬井
佐伯
谷川
塚田
松本
小林
森下
上内
島田
森
梅田
松山
山本
小西
倉地
山根
中原
河野
村上
土井
岩破
南
井上
三ツ股
小田
依藤
永禮
林
加藤
石藤
駒井
末吉
山本
芦野
樽井
野上
岡田
木村
池田
西村
藤澤
達川
奥原
那須
1/3
今週のPick Upページ
![]()
ご利用頂いたお客様の口コミ・レビューを「お客様の声」として掲載しております。
全てのご感想を掲載しておりますので、エクスショップの評判としてご参考ください。
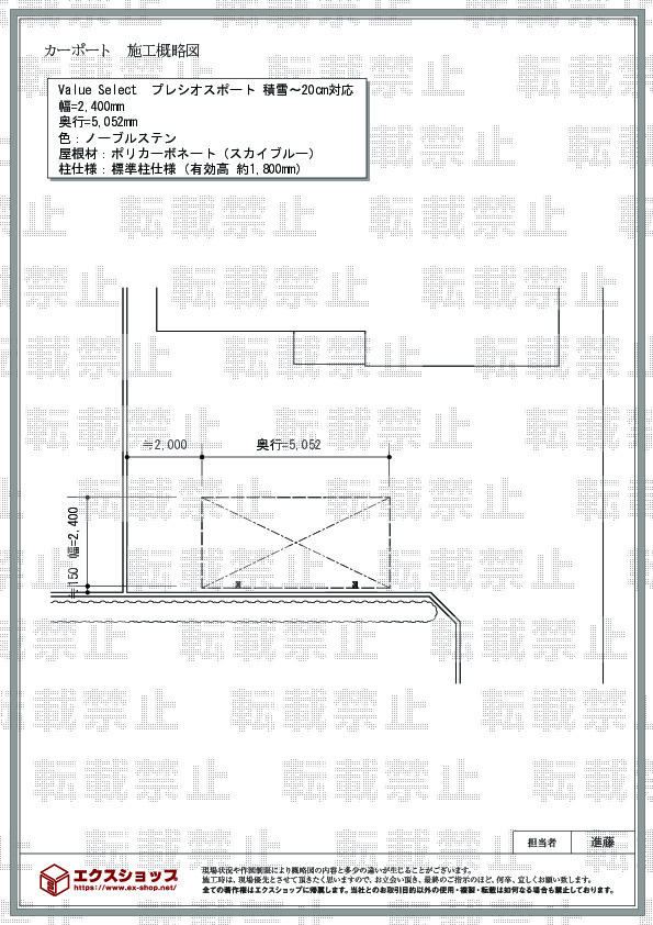
正式お見積りと一緒に提出させて頂いております「工事概略図面」もご覧頂けます。
商品や設置場所のご検討にお役立てください。
(写真No:19068411)
(カーポート)
| カラー | ノーブルステン |
|---|---|
| サイズ | 幅 2,400mm 奥行 5,052mm |
| 屋根高等 | 標準柱仕様(有効高 約1,800mm) |
| 屋根材等 | ポリカーボネート(スカイブルー) |
| 工事方法 | 地域密着あんしん施工 |
対応も早く、説明もキチンとして頂いたので安心してお願いすることが出来ました。
この度は、プレシオスポートの施工ご依頼を頂き誠に有り難うございます。顔の見えないネット販売ではございますが、お客様にご満足頂ける様、日々精進しておりますので、この様なお言葉を頂戴でき大変嬉しく存じます。ポリカーボネート(スカイブルー)の屋根材が、ノーブルステンのフレームとマッチして、美しいお仕上がりでございますね。今後益々精進して参りますので、また機会がございましたら、是非弊社をご用命頂きますよう、宜しくお願い致します。
当サイトは以下のセキュリティ機能や保護認定等を備えています。安心してお申し込みください
当サイトは256ビットSSL暗号化に対応しています。入力した個人情報は暗号化して送られますので、安心してご利用ください。
当社はJADMAの正会員です。同協会は法律で位置づけられた団体で、消費者の利益保護と業界の健全な発展の為に活動しています。
こちらの工事に使用しているエクステリア
![]()
プレシオスポート アール型 1台用

工事費・税込
112,000円〜
総合平均評価(星5つ評価)
4.74
商品レビュー数
46件
プレシオスポート アール型 1台用はアール屋根が特徴的なエクスショップオリジナルブランドのスタンダードカーポートです。耐風性能は基準風速Vo=34m/s・耐積雪性能は20cm相当(600N/㎡)を確保しています。本体カラーは3色展開・屋根材は4種類あります。
この商品の詳細へ
無料お見積り・現場調査・ご注文もこちら
この商品のレビュー
商品レビュー46件

大阪府 大阪狭山市 K.I.様
希望道理で施工も綺麗で工事の方の対応も礼儀正しく満足です。

広島県 世羅郡世羅町 M.M.様
施工業者様のお薦めでした。 費用対効果高い商品だと思います。 有効高さの選択があれば更に良い。

和歌山県 和歌山市 O.K.様
見積金額、施工と大満足です。また、機会があればよろしくお願いいたします。ありがとうございました。

福岡県 福岡市 A.H.様
見た目は一般的なカーポートと比べ先進的でおしゃれに感じる、柱は頑丈そうで安心感がある。天井部分が透明度が高く庭が暗くならず解放感がある

大阪府 高槻市 O.K.様
大満足です。来訪者の方から、見栄え良く綺麗になったなと、言われます。

埼玉県 日高市 N.A.様
ほぼイメージどおり。やや高さが低かったが、軽でトールタイプでなければ余裕。

長野県 諏訪市 T.R.様
非常に良く出来たカーポートと思います。コスパが良い、デザインも良い。ポリカの色もいろいろ有り良いです。

兵庫県 宝塚市 N.M.様
ステンレスのカーポートは、近所には無いので良いねといってもらえます。

滋賀県 守山市 I.A.様
満足しています。敷地に合わせて切り詰めて頂いたので駐輪スペースが広くとれて良かったです。

山口県 宇部市 T.Y.様
少し斜面になっていましたが、さすが専門業者さんでとてもよい仕上がりで大満足です。

愛知県 津島市 M.M.様
色も明るくてキレイで、威圧感がなく良いと思います。

愛知県 津島市 M.M.様
色も明るくてキレイで、威圧感がなく良いと思います。

滋賀県 大津市 S.Y.様
1台目のカーポートについては幅がバッチリ合っていて満足です。
関連するお客様の声

5つ星のうち5
福岡県K.Y. 様回答日:2015年5月
2Fテラスを工事いただき、雨に濡れることなく洗濯物が干せるようになりました。ウッドデッキができて、今後カフェみたいに落ち着いた時間を利用させていただきたいと考えております。車も濡れることがすくなくなりました。

5つ星のうち3
大阪府U.M. 様回答日:2015年4月
屋根ができて雨にぬれなく乗降で来て良い色も家とあってよかった

5つ星のうち5
広島県I.N. 様回答日:2015年4月
車が雨で汚れなくなり、嬉しく思います。

5つ星のうち5
三重県T.S. 様回答日:2015年3月
お店の店舗へ行って見積もりを頼むのは、頼みずらいのですが、その点エクスショップさんはインターネットで事前見積もりを頼めるので頼みやすかったです。見積もりの際の方も親切で、事前にこうしたいと伝えることができ、安心して施工を頼むことができました。完成状況もとても満足しています。ありがとうございました。

5つ星のうち5
熊本県I.H. 様回答日:2015年2月
エクスショップを選んで正解でした。価格はもちろんのこと、地元の業者さんで安心しました。対応が早く助かりました。

5つ星のうち5
神奈川県O.K. 様回答日:2025年11月
カーポート設置は住宅新築当初からの懸案でしたが、デザイン的に満足するものがなく、十年にわたり車は陽ざらし雨ざらしの状態を続けていました。あるときネット上でふと目にした製品がようやく気に入り、そこからどんどん話を進めて短期間での設置完了となりました。その過程で、エクスショップさんとは二十回以上のメール応答があり、担当の方の迅速かつ丁寧な対応は好印象だったといえます。予想していたよりも早い日にちで工事をしてもらえた点も大いに助かりました。なお施工完了後にみても、費用に十分見合う出来映えとして満足しています。

5つ星のうち5
愛知県A.M. 様回答日:2025年9月
ずっとカーポートが付けたかったけど、どうしてもいるものではなかったので後回しになっていた。年々猛暑が続いていた事がきっかけです。暑い日に乗った最初の車内の温度が低く感じられて、つけて良かったと思った。小雨の時の車の汚れが防げるといいなと思っています。

5つ星のうち5
京都府N.T. 様回答日:2025年9月
今回、人工芝の設置とカーポートの施工をお願いしました。人工芝は子供たちの評判も良く、近日にプールをするのを楽しみにしております。また、カーポートも想像以上の出来で、ご近所さんにもお褒めの言葉を頂きました。施工業者様もとても親切丁寧な方で、ぜひまたお願いしたいなと思います。
関連するブログ記事
関連するよくあるご質問
カーポートの設置と一緒に土間コンクリートを打設できますか?
【商品カテゴリ >カーポート】(ご質問No.707)
既存のカーポート屋根材の張り替えの依頼はできますか?
【商品カテゴリ >カーポート】(ご質問No.21)
以前購入したカーポートの部品のみを追加で購入する事は可能ですか?
【商品カテゴリ >カーポート】(ご質問No.48)
ワイドタイプのカーポートですが、横幅の切り詰めは可能ですか?
【商品カテゴリ >カーポート】(ご質問No.69)
カーポートって何ですか?
【商品カテゴリ >カーポート】(ご質問No.28910)
既存のカーポートの柱の高さを桁上げする事は可能ですか?
【商品カテゴリ >カーポート】(ご質問No.43)
既存のカーポートをいったん解体し、再度組み立てることは可能ですか?
【商品カテゴリ >カーポート】(ご質問No.46)
四国化成のFリードカーポート収納庫付きタイプは取り扱ってますか?
【商品カテゴリ >カーポート】(ご質問No.74)
既存カーポートの支柱を流用して、増設、縦列2台用のカーポートを設置することは可能ですか?
【商品カテゴリ >カーポート】(ご質問No.84)
四国化成のマイポートneoの取り扱いはありますか?
【商品カテゴリ >カーポート】(ご質問No.88)


















