各取扱メーカーの会社名、ロゴ及び商品名等は各社の商標または登録商標です。
| 日 | 月 | 火 | 水 | 木 | 金 | 土 |
|---|---|---|---|---|---|---|
| 1 | 2 | |||||
| 3 | 4 | 5 | 6 | 7 | 8 | 9 |
| 10 | 11 | 12 | 13 | 14 | 15 | 16 |
| 17 | 18 | 19 | 20 | 21 | 22 | 23 |
| 24 | 25 | 26 | 27 | 28 | 29 | 30 |
| 31 |
| 日 | 月 | 火 | 水 | 木 | 金 | 土 |
|---|---|---|---|---|---|---|
| 1 | 2 | 3 | 4 | 5 | 6 | |
| 7 | 8 | 9 | 10 | 11 | 12 | 13 |
| 14 | 15 | 16 | 17 | 18 | 19 | 20 |
| 21 | 22 | 23 | 24 | 25 | 26 | 27 |
| 28 | 29 | 30 |
…休業日(現場調査・工事は一部対応)
![]()
【受付時間】9:30 - 17:30(営業日)
![]()
【受付時間】9:30 - 17:30(営業日)
オペレーションスタッフ
エクステリアプランナー有資格者の私たちにお任せください。
ショップ責任者
神(じん)
エクステリア プランナー
有資格者61名
1/3
1/3
今週のPick Upページ
![]()
ご利用頂いたお客様の口コミ・レビューを「お客様の声」として掲載しております。
全てのご感想を掲載しておりますので、エクスショップの評判としてご参考ください。
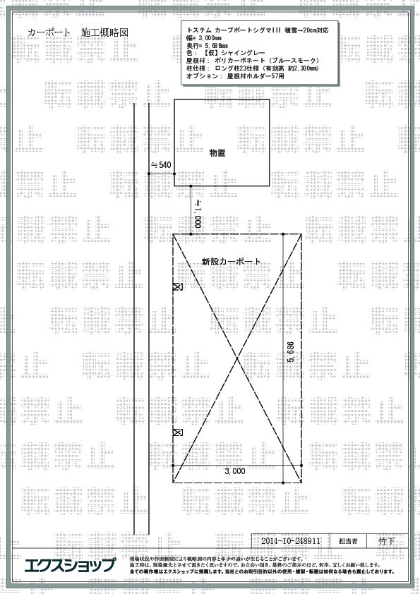
正式お見積りと一緒に提出させて頂いております「工事概略図面」もご覧頂けます。
商品や設置場所のご検討にお役立てください。
(写真No:24891121)
(カーポート)
| カラー | シャイングレー |
|---|---|
| サイズ | 幅 3,000mm 奥行 5,686mm |
| 屋根高等 | ロング柱23仕様(有効高 約2,300mm) |
| 屋根材等 | ポリカーボネート(ブルースモーク) |
| 工事方法 | メーカー責任施工 |
商品発注から施工まで一カ月以上かかったことと、当地域に提携店施工がなく工事費用が多くかかったのが残念です。施工に来て下さったメーカーさんはとても親切な方でした。
この度はカーブポートシグマIIIの施工をエクスショップにご依頼頂き、誠に有り難うございます。施工完了までお客様をお待たせいたしましたことを、心よりお詫び申し上げます。ご迷惑をお掛けしたにも関わらず、施工担当者にお褒めの言葉をお寄せ頂きましたこと、大変嬉しく存じます。今後、全ての面におきましてお客様にご満足頂けるよう、より一層努力を重ねて参ります。また機会がございましたら、是非弊社にご用命くださいますよう、宜しくお願い致します。
当サイトは以下のセキュリティ機能や保護認定等を備えています。安心してお申し込みください
当サイトはSSL暗号化に対応しています。入力した個人情報は暗号化して送られますので、安心してご利用ください。
当社はJADMAの正会員です。同協会は法律で位置づけられた団体で、消費者の利益保護と業界の健全な発展の為に活動しています。
こちらの工事に使用しているエクステリア
![]()
ネスカ R 1台用(ラウンドスタイル)

工事費・税込
143,800円~
商品レビュー数
1043件
ネスカ R 1台用(ラウンドスタイル)はラウンドタイプのアール屋根が特徴的な側方支柱カーポートです。本体カラーはシャイングレーを含めた全5色から、日差しからお車を守る屋根材は全6タイプ展開と種類に富む組み合わせが可能に。耐風性能は基準風速Vo=34m/s、耐積雪性能は20cm相当を対応しています。
この商品の詳細へ
無料お見積り・現場調査・ご注文もこちら