バイク・自転車を雨風から保護
お家の収納能力をアップ
ガレージの保全・防犯にカーポートと合わせて
お庭に機能的スペースを作り出します
防犯、お家のドレスアップはこれで決まり
ガレージ商品とコンビで高級感を演出
各取扱メーカーの会社名、ロゴ及び商品名等は各社の商標または登録商標です。
| 日 | 月 | 火 | 水 | 木 | 金 | 土 |
|---|---|---|---|---|---|---|
| 1 | 2 | 3 | 4 | 5 | 6 | |
| 7 | 8 | 9 | 10 | 11 | 12 | 13 |
| 14 | 15 | 16 | 17 | 18 | 19 | 20 |
| 21 | 22 | 23 | 24 | 25 | 26 | 27 |
| 28 | 29 | 30 | 31 |
| 日 | 月 | 火 | 水 | 木 | 金 | 土 |
|---|---|---|---|---|---|---|
| 1 | 2 | 3 | ||||
| 4 | 5 | 6 | 7 | 8 | 9 | 10 |
| 11 | 12 | 13 | 14 | 15 | 16 | 17 |
| 18 | 19 | 20 | 21 | 22 | 23 | 24 |
| 25 | 26 | 27 | 28 | 29 | 30 | 31 |
…休業日(現場調査・工事は一部対応)
![]()
【受付時間】9:30 - 17:30(営業日)
![]()
【受付時間】9:30 - 17:30(営業日)
オペレーションスタッフ
エクステリアプランナー有資格者の私たちにお任せください。
ショップ責任者
神(じん)
エクステリア プランナー
有資格者61名
1/3
木附
枡田
重富
吉澤
吉野
小東
池本
山田
佐藤
白崎
新西
伊野
次田
浅川
南
西山
小林
梨田
長谷川
藤田
阿重田
村上
植松
内田
久田
小野
平戸
中島
長石
水口
榮
山崎
清水
室谷
安田
水谷
酒井
神吉
日下部
山中
深田
田中
水田
西田
一氏
岡本
北
坂本
中嶋
岩野
伊藤
上中
高山
竹本
犬井
佐伯
谷川
原
丸山
塚田
松本
上内
島田
森
梅田
松山
山本
小林
倉地
山根
中原
河野
村上
土井
岩破
南
井上
三ツ股
小田
依藤
永禮
林
加藤
石藤
駒井
末吉
山本
芦野
樽井
野上
岡田
木村
池田
西村
藤澤
達川
奥原
那須
小西
森下
1/3
今週のPick Upページ
![]()
ご利用頂いたお客様の口コミ・レビューを「お客様の声」として掲載しております。
全てのご感想を掲載しておりますので、エクスショップの評判としてご参考ください。
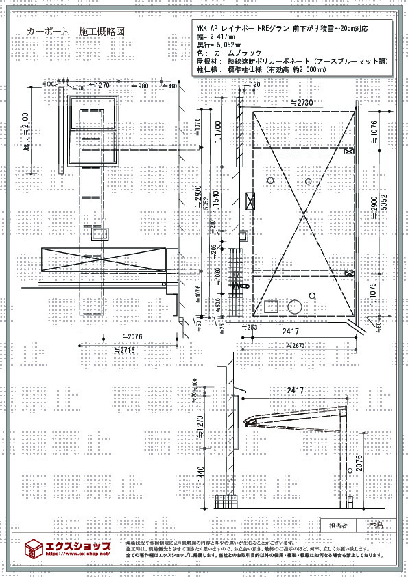
正式お見積りと一緒に提出させて頂いております「工事概略図面」もご覧頂けます。
商品や設置場所のご検討にお役立てください。
(写真No:18515319)
(カーポート)
| カラー | カームブラック |
|---|---|
| サイズ | 幅 2,417mm 奥行 5,052mm |
| 屋根高等 | 標準柱仕様(有効高 約2,000mm) |
| 屋根材等 | 熱線遮断ポリカーボネート(アースブルーマット調) |
| 工事方法 | 地域密着あんしん施工 |
当方の要望に対する迅速・丁寧な回答・対応にとても満足しています。生憎の天候の巡り合わせで、当初予定より大分着工が延びてしまいましたが、その間もこまめに連絡を頂き、安心してお任せ出来ました。
この度は、レイナポートREグランの施工をご依頼頂きまして、誠に有り難うございます。カームブラックのカーポートが、スタイリッシュで、スマートなお仕上がりですね。今後も、お客様が安心して施工をお任せくださるよう、確実で迅速な対応を心掛けて参ります。また機会がございましたら、エクスショップにご用命くださいますよう、宜しくお願い致します。
当サイトは以下のセキュリティ機能や保護認定等を備えています。安心してお申し込みください
当サイトは256ビットSSL暗号化に対応しています。入力した個人情報は暗号化して送られますので、安心してご利用ください。
当社はJADMAの正会員です。同協会は法律で位置づけられた団体で、消費者の利益保護と業界の健全な発展の為に活動しています。
こちらの工事に使用しているエクステリア
![]()
アリュースRE 600タイプ 前下がり 1台用

工事費・税込
182,100円〜
総合平均評価(星5つ評価)
4.71
商品レビュー数
24件
人気のレイナポートグランシリーズの後継商品! アリュースREはレギュラータイプのカーポートとは異なり、前下がり屋根が特徴的なカーポートです。そのため、縦列駐車スペースに最適な仕様となっております。屋根はアール型を採用し、雨水の流れの効率性アップ、雨風の吹き込みや日光の差し込みの低減に大きく貢献します。
この商品の詳細へ
無料お見積り・現場調査・ご注文もこちら
この商品のレビュー
商品レビュー24件

兵庫県 神戸市 N.K.様
創造通り、思った通りの仕上がりに満足しております。

千葉県 館山市 W.T.様
値段の割に見た目もチープな感じもなく とても良い商品だと思います

東京都 八王子市 I.K.様
まだ付けたばかりなので何とも言えないですが、見た目は良いです

千葉県 松戸市 H.T.様
当初から前下がりタイプを設置する予定で探しており、支柱が太く頑丈です。

東京都 練馬区 M.N.様
雨に濡れずに乗り降りできるようになってよかった。

福岡県 大牟田市 F.K.様
日差しも気にならない様になり大変満足をしています

奈良県 奈良市 M.Y.様
YKKのメーカーで信頼度があり、とゆの形状が良い事など、値引き率がよかった。

千葉県 船橋市 H.Y.様
見た目が立派で綺麗。思っていたよりとても丈夫そう。

和歌山県 日高郡みなべ町 T.N.様
家の外観にマッチするスタイリッシュな商品です。

大阪府 高槻市 K.S.様
概ね満足。高さがあるためが、安定性が低い気がする(暴風時が気になる。)

茨城県 稲敷郡美浦村 N.T.様
工事は思ってたよりも短い時間で終わり助かりました。

愛媛県 松山市 S.Y.様
補強材が車を駐車していても取り付けられるのでよい。

神奈川県 相模原市 W.Y.様
隣家に雨や雪の影響が出ないことは満足です。また道路からの見た目も目立たなくて良い。ただ、前下がりは柱が高いので、東側の日差しが多く入ってくることが想定外でした。

奈良県 天理市 U.H.様
支柱が片側タイプで北側設置ならばこのカーポートはいいと思います。

埼玉県 八潮市 M.M.様
雨が降った時の乗り降りが楽。 晴れの日、日中でも車の温度が低いため、 夏場に期待。
関連するお客様の声

5つ星のうち4
秋田県N.S. 様回答日:2011年12月
時期的に寒くなり、天候なども気にしていましたが、問い合わせなども親切に答えてもらい安心できましたした。工事には時間が少しかかりましたが、雪が積もる前にできて喜んでいます。その間のやり取りも丁寧していただきありがとうございます。

5つ星のうち4
福島県S.H. 様回答日:2012年10月
エクスショップさんの対応に関しては不満ありません。施工までこまめに連絡いただいたので、安心出来ました。

5つ星のうち5
香川県O.K. 様回答日:2015年4月
現場で、地元の業者と細かな打つ合わせをし確認しながら施工してくれた。生憎の天候で、完成が少し伸びたが、電話連絡ももらい工程に不安も感じられなかった。

5つ星のうち5
栃木県N.M. 様回答日:2014年7月
とても丁寧な対応で、こちらからの質問にも迅速に回答していただき、安心してカーポートを設置することが出来ました。

5つ星のうち5
埼玉県T.K. 様回答日:2017年8月
連絡(メールですが)が丁寧かつこまめにあったので、初めて利用するにあたって心配もなく、思い通りのカーポートができて良かったです。

5つ星のうち5
埼玉県T.T. 様回答日:2014年7月
工事の着工までは時間が掛かりましたが、その間の対応もしっかりしていましたし、工事の時の対応も安心が出来ました。

5つ星のうち5
兵庫県S.T. 様回答日:2018年3月
希望の商品が他社よりも安かった。見積もりから施工まで、施主都合で期間が空いてしまったが、その間もこまめに連絡をくれ、こちらの意見も聞いてもらえて良かった。

5つ星のうち5
徳島県A.Y. 様回答日:2012年2月
施工にかかる日が、天候が悪かったこともあり、日程をずらしながらの工事となりましたが、迅速に対応していただき、しっかりと満足のいく商品の仕上がりにしていただきました。本当にありがとうございました。

5つ星のうち4
千葉県K.M. 様回答日:2013年9月
ご担当者さんとの連絡もこまめにできたため、安心して利用することが出来ました。施工もしっかりとしていましたので安心しました。

5つ星のうち4
愛知県K.T. 様回答日:2011年8月
丁寧な応対で好感が持てました。施工にも満足しています。ただ、当初予定していた施工日が変わってしまったのには納得いかない。
関連するブログ記事
関連するよくあるご質問
カーポートの設置と一緒に土間コンクリートを打設できますか?
【商品カテゴリ >カーポート】(ご質問No.707)
既存のカーポート屋根材の張り替えの依頼はできますか?
【商品カテゴリ >カーポート】(ご質問No.21)
以前購入したカーポートの部品のみを追加で購入する事は可能ですか?
【商品カテゴリ >カーポート】(ご質問No.48)
ワイドタイプのカーポートですが、横幅の切り詰めは可能ですか?
【商品カテゴリ >カーポート】(ご質問No.69)
カーポートって何ですか?
【商品カテゴリ >カーポート】(ご質問No.28910)
既存のカーポートの柱の高さを桁上げする事は可能ですか?
【商品カテゴリ >カーポート】(ご質問No.43)
既存のカーポートをいったん解体し、再度組み立てることは可能ですか?
【商品カテゴリ >カーポート】(ご質問No.46)
四国化成のFリードカーポート収納庫付きタイプは取り扱ってますか?
【商品カテゴリ >カーポート】(ご質問No.74)
既存カーポートの支柱を流用して、増設、縦列2台用のカーポートを設置することは可能ですか?
【商品カテゴリ >カーポート】(ご質問No.84)
四国化成のマイポートneoの取り扱いはありますか?
【商品カテゴリ >カーポート】(ご質問No.88)


















