バイク・自転車を雨風から保護
お家の収納能力をアップ
ガレージの保全・防犯にカーポートと合わせて
お庭に機能的スペースを作り出します
防犯、お家のドレスアップはこれで決まり
ガレージ商品とコンビで高級感を演出
各取扱メーカーの会社名、ロゴ及び商品名等は各社の商標または登録商標です。
| 日 | 月 | 火 | 水 | 木 | 金 | 土 |
|---|---|---|---|---|---|---|
| 1 | ||||||
| 2 | 3 | 4 | 5 | 6 | 7 | 8 |
| 9 | 10 | 11 | 12 | 13 | 14 | 15 |
| 16 | 17 | 18 | 19 | 20 | 21 | 22 |
| 23 | 24 | 25 | 26 | 27 | 28 | 29 |
| 30 |
| 日 | 月 | 火 | 水 | 木 | 金 | 土 |
|---|---|---|---|---|---|---|
| 1 | 2 | 3 | 4 | 5 | 6 | |
| 7 | 8 | 9 | 10 | 11 | 12 | 13 |
| 14 | 15 | 16 | 17 | 18 | 19 | 20 |
| 21 | 22 | 23 | 24 | 25 | 26 | 27 |
| 28 | 29 | 30 | 31 |
…休業日(現場調査・工事は一部対応)
![]()
【受付時間】9:30 - 17:30(営業日)
![]()
【受付時間】9:30 - 17:30(営業日)
オペレーションスタッフ
エクステリアプランナー有資格者の私たちにお任せください。
ショップ責任者
神(じん)
エクステリア プランナー
有資格者61名
1/3
木附
枡田
重富
吉澤
吉野
小東
池本
山田
佐藤
白崎
新西
伊野
次田
浅川
南
西山
小林
梨田
長谷川
藤田
阿重田
村上
植松
内田
久田
小野
平戸
中島
長石
水口
榮
山崎
清水
室谷
安田
水谷
酒井
神吉
日下部
山中
深田
田中
水田
西田
一氏
岡本
北
坂本
中嶋
岩野
伊藤
上中
高山
竹本
犬井
佐伯
谷川
原
丸山
塚田
松本
上内
島田
森
梅田
松山
山本
小林
倉地
山根
中原
河野
村上
土井
岩破
南
井上
三ツ股
小田
依藤
永禮
林
加藤
石藤
駒井
末吉
山本
芦野
樽井
野上
岡田
木村
池田
西村
藤澤
達川
奥原
那須
小西
森下
1/3
今週のPick Upページ
![]()
ご利用頂いたお客様の口コミ・レビューを「お客様の声」として掲載しております。
全てのご感想を掲載しておりますので、エクスショップの評判としてご参考ください。
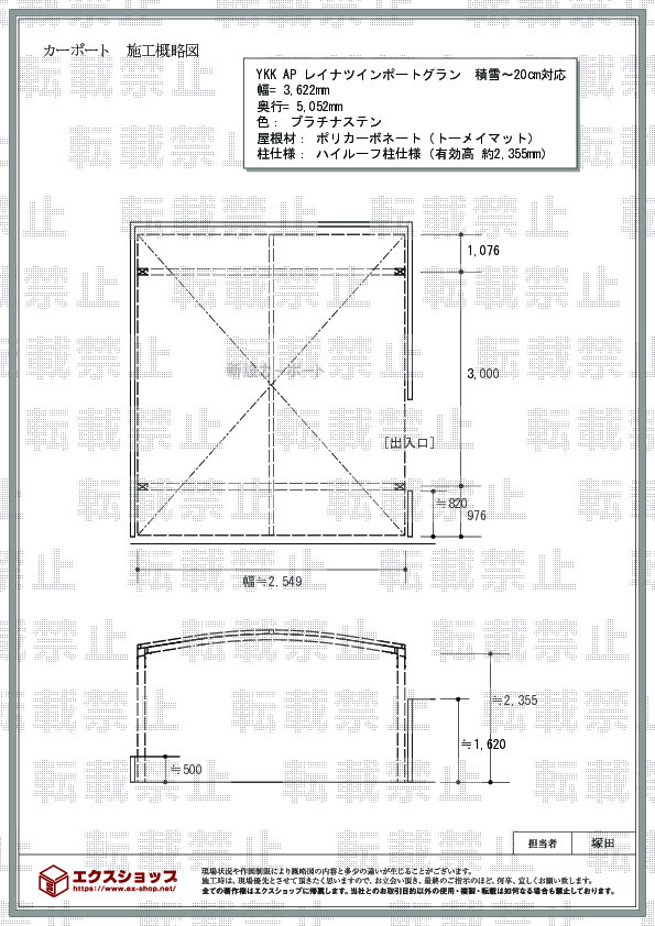
正式お見積りと一緒に提出させて頂いております「工事概略図面」もご覧頂けます。
商品や設置場所のご検討にお役立てください。
(写真No:21705523)
(カーポート)
| カラー | プラチナステン |
|---|---|
| サイズ | 幅 3,622mm 奥行 5,052mm |
| 屋根高等 | ハイルーフ柱仕様(有効高 約2,355mm) |
| 屋根材等 | ポリカーボネート(トーメイマット) |
| 工事方法 | 地域密着あんしん施工 |
初めてのネットでの発注だった為、かなり不安はありました。なぜこんな金額で出来るのかというおもいもありました。しかしながら、メールのやりとりに問題は無く、困ることは全くありませんでした。見積担当者が工事もすべて行って、行き違いもありませんでした。仕事の手順も出来栄えも良く、マナーも優れておられました。
この度は、レイナツインポートグランの施工をご依頼頂きまして、誠に有り難うございます。プラチナステンのフレームに、ポリカーボネート(トーメイマット)の屋根材が、とても明るく、爽やかなお仕上がりでございますね。お気に召して頂き、永くご愛用頂けましたら幸いでございます。今後は、更にお客様に安心してご利用頂けるよう、価格面についてきめ細かい説明を心掛けて参ります。また機会がございましたら、エクスショップをご用命頂ければ、幸いでございます。
当サイトは以下のセキュリティ機能や保護認定等を備えています。安心してお申し込みください
当サイトは256ビットSSL暗号化に対応しています。入力した個人情報は暗号化して送られますので、安心してご利用ください。
当社はJADMAの正会員です。同協会は法律で位置づけられた団体で、消費者の利益保護と業界の健全な発展の為に活動しています。
こちらの工事に使用しているエクステリア
![]()
アリュース 600タイプ 2台用

工事費・税込
215,900円〜
総合平均評価(星5つ評価)
4.85
商品レビュー数
105件
アリュース 600タイプ 2台用は継ぎ目のない大きなアール屋根が特徴的な両側支持タイプの2台用カーポートです。柱・梁には水での急速冷却により高強度化(T6処理)したアルミニウム合金を用いており、基準風速Vo=40m/s・耐積雪性能20cmを確保しています。
この商品の詳細へ
無料お見積り・現場調査・ご注文もこちら
この商品のレビュー
商品レビュー105件

茨城県 古河市 S.M.様
色々アドバイスもいただき良い買い物が出来たと思います。

静岡県 浜松市 A.T.様
急遽ハツリ工事が発生しましたが、職人さんも快く施工してくれました。 仕上がりも綺麗で満足してます。

群馬県 伊勢崎市 K.H.様
外観はとても良い。 荒天の時を迎えないとそれ以上は言えない。

岡山県 和気郡和気町 N.K.様
大変満足です。 土地が広いのでもうワンサイズ大きい物でもよかったかなと思います。

埼玉県 蓮田市 T.K.様
改定で高さが標準で2,200mmになり、選んだカラー、屋根材のおかげで明るく素敵なカーポートが完成。

千葉県 八街市 T.K.様
車のUV対策で購入。ルーフが思ってた以上に濃いめだったので良かったです。

大阪府 高槻市 S.T.様
とても明るく凄く丈夫そうです 広くなった気もします

神奈川県 厚木市 O.T.様
まだ設置したばかりですが、シンプルな外観でアーチも緩やかなので、周囲の景観とよくマッチします。 色もプラチナステンを選んだので、重くならずにモダンな感じを維持出来ました。 家族からも良いデザインだといわれています。

栃木県 芳賀郡茂木町 T.T.様
担当者様及び施工業者様の対応がとてもよく、スムーズに購入設置することができました。

愛媛県 松山市 Y.H.様
もう少し低い方が良かったのではとの事 サイドからの吹き込みが気になる。

静岡県 富士宮市 M.Y.様
我が家の駐車場に合うのか実際分からなかったので不安でしたが、幅、高さ、奥行きも充分あり、大変満足しています。車にキャリーラックを搭載していますが、キャンプ用品の積み込みも余裕でできそうです。

千葉県 市川市 O.T.様
後付けでセンサーライトなどを取り付けられるようになっていれば良かった

埼玉県 春日部市 K.K.様
カーポートをつけ圧迫感が出てしまうかと思いましたが、屋根部分が明るいため逆に広く感じるほどでした。

長崎県 諫早市 E.Y.様
骨組みがしっかりしてるので、台風が来ても大丈夫そうです。

茨城県 つくば市 K.S.様
基盤がしっかりしていて頑丈そうだった。 色が良かった
関連するお客様の声

5つ星のうち5
静岡県O.T. 様回答日:2013年10月
ネットでの発注に不安があったが、メールでのやりとりが迅速、丁寧で、施工も安心できそうなことがわかったため。

5つ星のうち5
山梨県T.N. 様回答日:2021年12月
ネットでのやりとりに最初は不安がありましたが、迅速丁寧に対応していただきました。仕事でなかなか電話に出るなどできなかったのですが、メールなどスムーズにやりとり出来ました。ありがとうございます(∀`*ゞ)

5つ星のうち4
大阪府M.K. 様回答日:2011年12月
あまりネットからの買い物をしたことがなかったので本当に大丈夫か不安でしたが、全く問題ありませんでした。メールでのやりとり、施工業者もきっちりしてました。

5つ星のうち5
兵庫県N.R. 様回答日:2018年6月
価格と見積担当者の話しやすさに惹かれ、屋根をつけることにより、やはり雨を凌げれるのが大きな快適点でした。

5つ星のうち4
三重県Y.M. 様回答日:2014年12月
ほとんどがメールでのやりとりということで少し不安もありましたが、とても細かく迅速なやり取りができたので次第にその不安も解消されました。施工も問題なく終わり満足しています。

5つ星のうち5
岐阜県O.K. 様回答日:2012年8月
非常に丁寧に対応していただきありがとうございます。電話での応対、見積担当者、施工業者の方、すべての方が、丁寧で親切でした。後は保証関係ですが、おそらく安心できると思っています。

5つ星のうち4
宮城県M.M. 様回答日:2014年5月
ネットでの発注は初めてででしたが、メールでのやり取りも、施工もスムーズで全く問題ありませんでした。ありがとうございました。

5つ星のうち4
岡山県M.N. 様回答日:2021年1月
ネットで見て安かったのでお見積もりをお願いしました。担当者とは電話、メールでのやりとりでしたので心配でしたが問題なく終わりました。

5つ星のうち5
千葉県S.N. 様回答日:2014年7月
メールでやりとりするのは不安でしたが、見積もりや工事の日程調整の連絡が早く、安心してお願いすることが出来ました。

5つ星のうち5
宮城県K.Y. 様回答日:2020年2月
ネットショップの為、すべての連絡がメールでの連絡だったが、スムーズにやり取りができ、質問にも、すぐに回答していただいた為、安心して発注できました。
関連するブログ記事
関連するよくあるご質問
カーポートの設置と一緒に土間コンクリートを打設できますか?
【商品カテゴリ >カーポート】(ご質問No.707)
既存のカーポート屋根材の張り替えの依頼はできますか?
【商品カテゴリ >カーポート】(ご質問No.21)
以前購入したカーポートの部品のみを追加で購入する事は可能ですか?
【商品カテゴリ >カーポート】(ご質問No.48)
ワイドタイプのカーポートですが、横幅の切り詰めは可能ですか?
【商品カテゴリ >カーポート】(ご質問No.69)
カーポートって何ですか?
【商品カテゴリ >カーポート】(ご質問No.28910)
既存のカーポートの柱の高さを桁上げする事は可能ですか?
【商品カテゴリ >カーポート】(ご質問No.43)
既存のカーポートをいったん解体し、再度組み立てることは可能ですか?
【商品カテゴリ >カーポート】(ご質問No.46)
四国化成のFリードカーポート収納庫付きタイプは取り扱ってますか?
【商品カテゴリ >カーポート】(ご質問No.74)
既存カーポートの支柱を流用して、増設、縦列2台用のカーポートを設置することは可能ですか?
【商品カテゴリ >カーポート】(ご質問No.84)
四国化成のマイポートneoの取り扱いはありますか?
【商品カテゴリ >カーポート】(ご質問No.88)


















