バイク・自転車を雨風から保護
お家の収納能力をアップ
ガレージの保全・防犯にカーポートと合わせて
お庭に機能的スペースを作り出します
防犯、お家のドレスアップはこれで決まり
ガレージ商品とコンビで高級感を演出
各取扱メーカーの会社名、ロゴ及び商品名等は各社の商標または登録商標です。
| 日 | 月 | 火 | 水 | 木 | 金 | 土 |
|---|---|---|---|---|---|---|
| 1 | 2 | 3 | ||||
| 4 | 5 | 6 | 7 | 8 | 9 | 10 |
| 11 | 12 | 13 | 14 | 15 | 16 | 17 |
| 18 | 19 | 20 | 21 | 22 | 23 | 24 |
| 25 | 26 | 27 | 28 | 29 | 30 | 31 |
| 日 | 月 | 火 | 水 | 木 | 金 | 土 |
|---|---|---|---|---|---|---|
| 1 | 2 | 3 | 4 | 5 | 6 | 7 |
| 8 | 9 | 10 | 11 | 12 | 13 | 14 |
| 15 | 16 | 17 | 18 | 19 | 20 | 21 |
| 22 | 23 | 24 | 25 | 26 | 27 | 28 |
…休業日(現場調査・工事は一部対応)
![]()
【受付時間】9:30 - 17:30(営業日)
![]()
【受付時間】9:30 - 17:30(営業日)
オペレーションスタッフ
エクステリアプランナー有資格者の私たちにお任せください。
ショップ責任者
神(じん)
エクステリア プランナー
有資格者61名
1/3
木附
枡田
重富
吉澤
吉野
小東
池本
山田
佐藤
白崎
新西
伊野
次田
南
西山
小林
阿重田
梨田
長谷川
藤田
村上
平戸
植松
内田
久田
中島
長石
水口
榮
山崎
清水
室谷
安田
水谷
小野
酒井
一氏
神吉
日下部
山中
深田
田中
水田
西田
岡本
丸山
北
坂本
中嶋
岩野
伊藤
上中
高山
原
犬井
佐伯
谷川
塚田
松本
小林
森下
上内
島田
森
梅田
松山
山本
小西
倉地
山根
中原
河野
村上
土井
岩破
南
井上
三ツ股
小田
依藤
永禮
林
加藤
石藤
駒井
末吉
山本
芦野
樽井
野上
岡田
木村
池田
西村
藤澤
達川
奥原
那須
1/3
今週のPick Upページ
![]()
ご利用頂いたお客様の口コミ・レビューを「お客様の声」として掲載しております。
全てのご感想を掲載しておりますので、エクスショップの評判としてご参考ください。
正式お見積りと一緒に提出させて頂いております「工事概略図面」もご覧頂けます。
商品や設置場所のご検討にお役立てください。
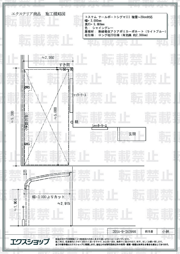
(写真No:24399829)
(カーポート)
| カラー | シャイングレー |
|---|---|
| サイズ | 幅 3,000mm 奥行 5,686mm |
| 屋根高等 | ロング柱23仕様(有効高 約2,300mm) |
| 屋根材等 | 熱線吸収アクアポリカーボネート(ライトブルー) |
| 工事方法 | 地域密着あんしん施工 |
見積りに来てくれた方、電話で色々と細かい質問にも丁寧に答えてくれた担当の方施工してくれた方、皆さん対応がよくてすごくよかったです。
弊社は日頃から、迅速な対応とともに、全てのお客様に安心してご利用頂ける丁寧な対応を心掛けておりますので、このようなお褒めのお言葉を頂き、感無量でございます。テールポートシグマIIIがお住まいの駐車スペースにぴったり納まりましたこと、大変嬉しく存じます。しっかりとした安定感で、大切なお車をお守りするパートナーとし、末永くご利用頂ければ幸いでございます。これからも、常にお客様満足度100%を目指し、精進して参ります。この度のご利用、誠に有り難うございました。またのご利用を心よりお待ち申し上げております。
当サイトは以下のセキュリティ機能や保護認定等を備えています。安心してお申し込みください
当サイトは256ビットSSL暗号化に対応しています。入力した個人情報は暗号化して送られますので、安心してご利用ください。
当社はJADMAの正会員です。同協会は法律で位置づけられた団体で、消費者の利益保護と業界の健全な発展の為に活動しています。
こちらの工事に使用しているエクステリア
![]()
フーゴ R 袖壁 1台用(ラウンドスタイル)

工事費・税込
280,500円〜
総合平均評価(星5つ評価)
5
商品レビュー数
5件
フーゴ R 袖壁 1台用(ラウンドスタイル)は側面からの風雪雨を減少させる対応力が特徴のカーポートです。H22柱を標準的に装備しており、高さのある車にも余裕で対応します。耐風性能は基準風速Vo=34m/sに適合し、20cmの積雪にも対応可能です。
この商品の詳細へ
無料お見積り・現場調査・ご注文もこちら
関連するお客様の声

5つ星のうち5
大阪府C.K. 様回答日:2012年10月
ネットでの注文なので不安はありましたが担当の方の電話対応もとても丁寧で質問にもきちんと答えて頂き、とても満足しています。

5つ星のうち5
愛知県K.A. 様回答日:2016年7月
担当の方、見積りして頂いた方、施工担当の方、皆さんとても親切・丁寧に対応して頂いて、とても良かったです。仕上がりにもとても満足しています。ありがとうございました。

5つ星のうち5
奈良県O.Y. 様回答日:2013年3月
担当の方に、メールや電話で何度か質問をさせて頂きましたが、とても親切に対応をして頂けましたので相談がしやすかったのが良かったです。現場調査に来られた方がとても親切で、施工も担当して頂けたので安心でした。施工途中に再度、細かい確認をとりながら進めて下さったので、出来上がりはとても満足しています。今後、また機会があればお願いしたいと思います。

5つ星のうち5
愛知県K.K. 様回答日:2013年1月
電話での対応がとてもよく、結構無理なお願いにもとても丁寧な対応をとってもらいとても感謝してます。担当の方、ありがとうございます。

5つ星のうち5
東京都M.T. 様回答日:2011年4月
インターネットでの注文ややり取りでしたが見積もりをしてくださった方、メールや電話の担当の方、施工担当者の方とても親切でした!出来上がりもよかったです!ありがとうございました。また機会がありましたらぜひお願いしたいと思います。

5つ星のうち4
東京都T.K. 様回答日:2011年2月
ネットでの申し込みで少し不安もあったが、見積りに来た方や担当の方の対応で安心できた。工事当日も丁寧に施工していただいた。

5つ星のうち5
香川県I.J. 様回答日:2012年4月
オペレーションの担当の方は良かったのですが2〜3回女性の方から電話を頂きましたが約束を守って頂けませんでした。その他は施工の方も非常に感じの良い方でこちらの質問にも丁寧に答えて頂き安心して任す事が出来ました。今後も機会があればお願いしたいです。

5つ星のうち5
大阪府I.A. 様回答日:2016年6月
いろいろな質問に対しても、担当の方が丁寧に対応していただけたので、安心できると思い、エクスショップさんに決めました。また、当日の工事の方も、事前の打合せや説明をしっかりして頂き、工事も丁寧にしていただいたのでとても満足しております。

5つ星のうち5
埼玉県W.J. 様回答日:2012年7月
担当の方が迅速にいろいろとメールで対応していただいたのでとても良かったと思います。工事の担当の方もこの暑い中頑張っていただきましたのでとても納得のいく仕上がりでした。本当に頼んで良かったと思います。ありがとうございました。

5つ星のうち5
兵庫県S.M. 様回答日:2011年11月
見積もりや電話での対応もとっても迅速で感じが良かった。また現場調査に来て頂いた方もとっても丁寧で質問などにもすぐ答えてくれた。感じもよい方でした。また2台分のカーポートを近々作りたいのでまたお願いします。
関連するブログ記事
関連するよくあるご質問
カーポートの設置と一緒に土間コンクリートを打設できますか?
【商品カテゴリ >カーポート】(ご質問No.707)
既存のカーポート屋根材の張り替えの依頼はできますか?
【商品カテゴリ >カーポート】(ご質問No.21)
以前購入したカーポートの部品のみを追加で購入する事は可能ですか?
【商品カテゴリ >カーポート】(ご質問No.48)
ワイドタイプのカーポートですが、横幅の切り詰めは可能ですか?
【商品カテゴリ >カーポート】(ご質問No.69)
カーポートって何ですか?
【商品カテゴリ >カーポート】(ご質問No.28910)
既存のカーポートの柱の高さを桁上げする事は可能ですか?
【商品カテゴリ >カーポート】(ご質問No.43)
既存のカーポートをいったん解体し、再度組み立てることは可能ですか?
【商品カテゴリ >カーポート】(ご質問No.46)
四国化成のFリードカーポート収納庫付きタイプは取り扱ってますか?
【商品カテゴリ >カーポート】(ご質問No.74)
既存カーポートの支柱を流用して、増設、縦列2台用のカーポートを設置することは可能ですか?
【商品カテゴリ >カーポート】(ご質問No.84)
四国化成のマイポートneoの取り扱いはありますか?
【商品カテゴリ >カーポート】(ご質問No.88)


















