バイク・自転車を雨風から保護
お家の収納能力をアップ
ガレージの保全・防犯にカーポートと合わせて
お庭に機能的スペースを作り出します
防犯、お家のドレスアップはこれで決まり
ガレージ商品とコンビで高級感を演出
各取扱メーカーの会社名、ロゴ及び商品名等は各社の商標または登録商標です。
| 日 | 月 | 火 | 水 | 木 | 金 | 土 |
|---|---|---|---|---|---|---|
| 1 | 2 | 3 | 4 | 5 | 6 | |
| 7 | 8 | 9 | 10 | 11 | 12 | 13 |
| 14 | 15 | 16 | 17 | 18 | 19 | 20 |
| 21 | 22 | 23 | 24 | 25 | 26 | 27 |
| 28 | 29 | 30 | 31 |
| 日 | 月 | 火 | 水 | 木 | 金 | 土 |
|---|---|---|---|---|---|---|
| 1 | 2 | 3 | ||||
| 4 | 5 | 6 | 7 | 8 | 9 | 10 |
| 11 | 12 | 13 | 14 | 15 | 16 | 17 |
| 18 | 19 | 20 | 21 | 22 | 23 | 24 |
| 25 | 26 | 27 | 28 | 29 | 30 | 31 |
…休業日(現場調査・工事は一部対応)
![]()
【受付時間】9:30 - 17:30(営業日)
![]()
【受付時間】9:30 - 17:30(営業日)
オペレーションスタッフ
エクステリアプランナー有資格者の私たちにお任せください。
ショップ責任者
神(じん)
エクステリア プランナー
有資格者61名
1/3
木附
枡田
重富
吉澤
吉野
小東
池本
山田
佐藤
白崎
新西
伊野
次田
浅川
南
西山
小林
梨田
長谷川
藤田
阿重田
村上
植松
内田
久田
小野
平戸
中島
長石
水口
榮
山崎
清水
室谷
安田
水谷
酒井
神吉
日下部
山中
深田
田中
水田
西田
一氏
岡本
北
坂本
中嶋
岩野
伊藤
上中
高山
竹本
犬井
佐伯
谷川
原
丸山
塚田
松本
上内
島田
森
梅田
松山
山本
小林
倉地
山根
中原
河野
村上
土井
岩破
南
井上
三ツ股
小田
依藤
永禮
林
加藤
石藤
駒井
末吉
山本
芦野
樽井
野上
岡田
木村
池田
西村
藤澤
達川
奥原
那須
小西
森下
1/3
今週のPick Upページ
![]()
ご利用頂いたお客様の口コミ・レビューを「お客様の声」として掲載しております。
全てのご感想を掲載しておりますので、エクスショップの評判としてご参考ください。
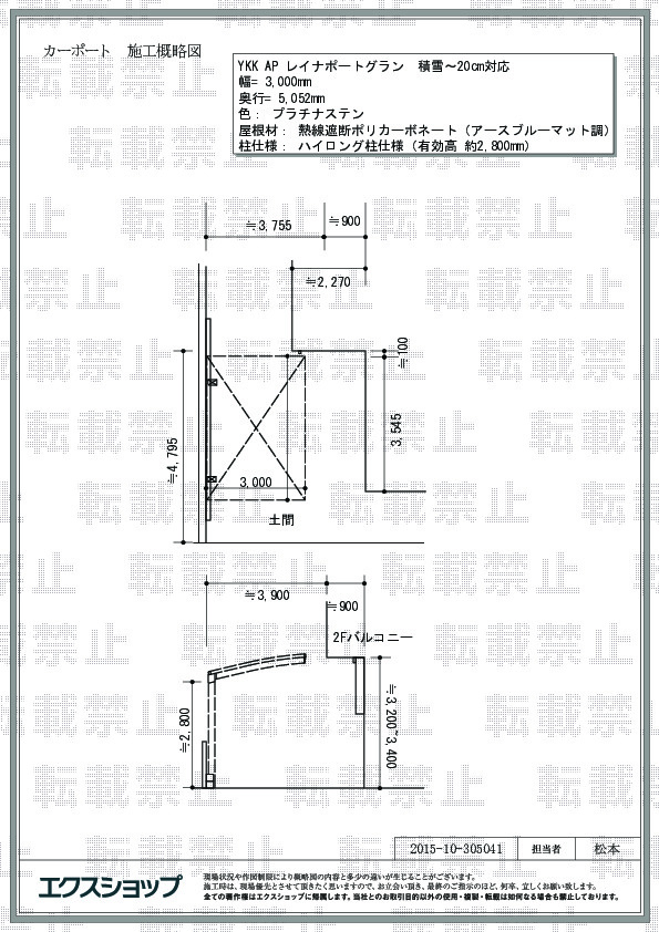
正式お見積りと一緒に提出させて頂いております「工事概略図面」もご覧頂けます。
商品や設置場所のご検討にお役立てください。
(写真No:30504131)
(カーポート)
| カラー | プラチナステン |
|---|---|
| サイズ | 幅 3,000mm 奥行 5,052mm |
| 屋根高等 | ハイロング柱仕様(有効高 約2,800mm) |
| 屋根材等 | 熱線遮断ポリカーボネート(アースブルーマット調) |
| 工事方法 | 地域密着あんしん施工 |
設置場所がブロック塀と近く、勾配もあり設置しにくかったと思いますが丁寧に対応していただきとても助かりました。屋根が出来たことによって車の汚れもずいぶん少なくなると思うので良かったです。
当サイトは以下のセキュリティ機能や保護認定等を備えています。安心してお申し込みください
当サイトは256ビットSSL暗号化に対応しています。入力した個人情報は暗号化して送られますので、安心してご利用ください。
当社はJADMAの正会員です。同協会は法律で位置づけられた団体で、消費者の利益保護と業界の健全な発展の為に活動しています。
こちらの工事に使用しているエクステリア
![]()
アリュース 600タイプ 1台用

工事費・税込
133,100円〜
総合平均評価(星5つ評価)
4.84
商品レビュー数
191件
アリュース 600タイプ 1台用はアール屋根・片側支持仕様のカーポートです。柱と梁にはT6処理(部材押出時に水で急速冷凍し高強度化)を施したアルミニウム合金を採用。基準風速Vo=34m/s・耐積雪性能20cmの安心性能です。オプションとしてサイドパネルなどもご用意。
この商品の詳細へ
無料お見積り・現場調査・ご注文もこちら
この商品のレビュー
商品レビュー191件

岡山県 玉野市 Y.T.様
幅広いバリエーションで幅、奥行き、高さ等の選択肢が多く、遮熱屋根が選べたのが良かったです。

高知県 四万十市 N.M.様
まだ駐車場の土間コンクリートが完成してないので使っていませんがとても満足です。暑くなるこれからの季節にとても役立つと思います。

兵庫県 明石市 S.E.様
前のカーポートは20年以上使っていたので、入れ替えた事により明るくなりました。近所の方々によーなったなぁと言っていただき高評判です。

広島県 三原市 O.Y.様
見た目も大変よく大満足です。工事もとても丁寧にしていただきました。

兵庫県 神戸市 N.H.様
作りがしっかりしていて、デザインがよく 色のバリエーションも多いので家に合わせやすい

神奈川県 横浜市 I.T.様
思ったより大きかったので少し積雪が心配です。

埼玉県 東松山市 M.M.様
比較的安い商品を頼んだが、柱が太くて丈夫そう。 倒壊の心配は無い。

栃木県 さくら市 F.A.様
全長も長く、幅広なので車が停めやすくなった。自宅の屋根と位置を合わせたことで雨に濡れなくなった。

三重県 津市 K.T.様
事前にイメージしたとおりでとても満足しています。質感や色も悪くないです。

奈良県 生駒市 K.H.様
現時点では大変満足しています。 家族の評判も良いです。

岡山県 倉敷市 C.N.様
カーポート自体少し大きく、車以外、自転車もいれることができ満足してます

大分県 大分市 Z.M.様
九州はこれからの季節、朝の慌ただしい出勤時… 「今朝は車のフロントガラスが朝霜で凍ってるかな〜?凍ってたら溶かさなきゃな〜」と気をもむ1月に施工していただきました。おかげさまで、カーポート屋根が朝霜をすべて受け止め…毎朝スムーズ快適に出勤しております。

岐阜県 関市 M.Y.様
モデルチェンジしたみたいですが前のモデルとそんなに変わらないのでよかったです。

兵庫県 高砂市 T.M.様
カーポートの形状も色合いもよく、大変満足しています。

神奈川県 横浜市 H.N.様
カーポートの設置によって、部屋の明るさに影響を与えることを心配していましたが、 透過性のよい材質のため、全く影響なく設置できました。

栃木県 塩谷郡高根沢町 M.S.様
ご丁寧にメールを頂きありがとうございました。土日しか休みがないので、休日に見積りや施工が出来ると良かったです。

神奈川県 横浜市 K.Y.様
日差しがしっかり抑えられ、霜が車につくことが少なくなり安心して車を停められるようになりました。

佐賀県 伊万里市 N.T.様
まだ設置したばかりで1年の春夏秋冬を経験していないので何とも言えませんが今の所は満足です。

神奈川県 川崎市 A.S.様
既存の外構と違和感なく溶け込んで、とてもよいです。今は冬なので実感できませんが、夏を迎えた時に遮光性を発揮してくれることを期待しています。

東京都 練馬区 A.N.様
概ね想定通りの製品であったが、使用開始後間もないので、評価はこれからです。

千葉県 四街道市 Y.H.様
シンプルで非常に気に入ってます。 サイドのパネルは高くて手が出ませんでした。
関連するお客様の声

5つ星のうち5
埼玉県M.K. 様回答日:2018年9月
車を新しく買い替えたので、屋根が欲しいと思いました。雨がしのげるようになり、汚れも少なくなりました。迅速な対応で丁寧な方でよかったです。

5つ星のうち5
大阪府I.T. 様回答日:2015年10月
ベランダの屋根は、急に雨が降ってきても、あわてなくて良くなったので、助かってます。カーポートの屋根は、車の汚れも付きにくいし、雨がかからず、うれしいです。

5つ星のうち5
愛知県Y.M. 様回答日:2020年6月
雨による車の汚れがひどかったので施工をお願いしました。汚れもなくなり満足しています。また電話対応、施工者の方も親切に対応して頂きました。

5つ星のうち5
鹿児島県K.Y. 様回答日:2018年9月
カーポートのおかげで車が雨ざらしにならず、駐車場に勾配がついているがちゃんと施工して頂けて良かったです。

5つ星のうち5
長野県K.Y. 様回答日:2020年12月
車を新しく購入したことをきっかけにカーポートを設置いたしました。車の汚れが軽減され、設置してよかったと思っています。また、エクスショップさんの丁寧でこまめな対応につきましても、大変好感が持てました。

5つ星のうち5
大阪府T.M. 様回答日:2016年6月
車を雨や汚れから守りたかったので、購入しました。雨の日は濡れずに家に入ることができ、雨の次の日の車の汚れがひどかったのがなくなりました。

5つ星のうち5
東京都M.M. 様回答日:2019年7月
野ざらし状態の車の汚れが気になっていましたが、カーポートを設置してからは雨による汚れもほとんど気にならなくなりました

5つ星のうち5
東京都S.G. 様回答日:2018年10月
カーポートを設置したことにより雨でも乗り降りしやすくなり、車の汚れも軽減されると思います。施工もしっかりしていただき満足です。

5つ星のうち5
神奈川県K.A. 様回答日:2016年2月
車の汚れが酷く、購入を考えました。カーポートが設置され、雨にも濡れず助かってます。ショップの対応も良く、施工も納得でした。

5つ星のうち4
静岡県F.M. 様回答日:2018年4月
設置場所に勾配があり、いろいろと悩んで見積もりも3回お願いしましたが、すぐに返事が来てとても丁寧な対応で良かったです。これで夏の日差しが緩和されるし、雨で濡れることも少なくなるでしょう。
関連するブログ記事
関連するよくあるご質問
カーポートの設置と一緒に土間コンクリートを打設できますか?
【商品カテゴリ >カーポート】(ご質問No.707)
既存のカーポート屋根材の張り替えの依頼はできますか?
【商品カテゴリ >カーポート】(ご質問No.21)
以前購入したカーポートの部品のみを追加で購入する事は可能ですか?
【商品カテゴリ >カーポート】(ご質問No.48)
ワイドタイプのカーポートですが、横幅の切り詰めは可能ですか?
【商品カテゴリ >カーポート】(ご質問No.69)
カーポートって何ですか?
【商品カテゴリ >カーポート】(ご質問No.28910)
既存のカーポートの柱の高さを桁上げする事は可能ですか?
【商品カテゴリ >カーポート】(ご質問No.43)
既存のカーポートをいったん解体し、再度組み立てることは可能ですか?
【商品カテゴリ >カーポート】(ご質問No.46)
四国化成のFリードカーポート収納庫付きタイプは取り扱ってますか?
【商品カテゴリ >カーポート】(ご質問No.74)
既存カーポートの支柱を流用して、増設、縦列2台用のカーポートを設置することは可能ですか?
【商品カテゴリ >カーポート】(ご質問No.84)
四国化成のマイポートneoの取り扱いはありますか?
【商品カテゴリ >カーポート】(ご質問No.88)


















